
| 賃料 | 予想金額:100,000〜120,000円程度 | 管理費 | 予想金額:13,000〜17,000円程度 |
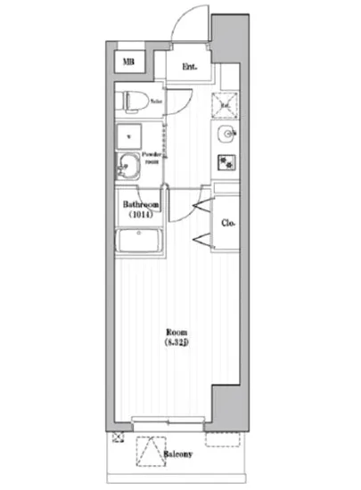
| 礼金/敷金 | 非公開(アーカイブ) | 平米数 | 25.91㎡ |
| 初期費用概算(参考) | 目安:25,500〜125,500 円 | みなし賃料(月額・参考) | 114,281〜134,281 円 |
| 備考 | 本ページは過去募集のアーカイブです。表示の金額は周辺相場・過去募集を踏まえた参考レンジであり、実際の契約金額・条件ではありません。 | ||
※上記みなし賃料(月額)は仲介手数料割引・無料&キャッシュバックを加味した高級賃貸バイブル限定の金額です。一般的なみなし賃料とは異なります。
【建物ページ】アーバンパーク三ノ輪2の詳細・最新空室はこちら▶▶選ばれる理由
仲介手数料無料・キャンペーン情報(毎月15名様限定)
〇引っ越しお祝い金132000円プレゼント(キャッシュバック)
〇仲介手数料無料キャンペーン
アーバンパーク三ノ輪2 1302の口コミ・レビュー
アーバンパーク三ノ輪2 1302は、あなたを新たな物語の舞台へと誘います。東京都台東区竜泉2-19-17、ここはまるで時間を超えたような静謐な空間が広がっており、あなたの新しい生活が始まるのを待っています。今回は、特別なこの場所がどれほど魅力的か、あなたにお伝えいたします。
この美しい居住空間は、エレベーターで1302階へと昇ります。ドアが開くと、目に映るのは優雅で洗練された内部のデザイン。25…アーバンパーク三ノ輪2 1302は、あなたを新たな物語の舞台へと誘います。東京都台東区竜泉2-19-17、ここはまるで時間を超えたような静謐な空間が広がっており、あなたの新しい生活が始まるのを待っています。今回は、特別なこの場所がどれほど魅力的か、あなたにお伝えいたします。
この美しい居住空間は、エレベーターで1302階へと昇ります。ドアが開くと、目に映るのは優雅で洗練された内部のデザイン。25.91㎡の空間が、あなたの夢を具現化するために用意されています。洋室は8.32帖、心地良いマットが足元を包み、その上を歩くたびにやわらかな触覚が広がることでしょう。一歩踏み入れれば、そこにはあなたのあたたかいおもてなしの空間が待っているのです。
このアーバンパーク三ノ輪2 1302は、ただの物件ではありません。まるで古い友人のように、あなたの生活をリズムよく彩ります。朝、窓から差し込む東の光が、あなたの起床を優しく促し、あなたはその光に包まれながら新しい一日を迎えることでしょう。そして、ふと窓の外を眺めれば、日常の喧騒とは対照的な穏やかな風景が広がります。周辺の歴史ある街並みは、まるで過去と現在を織り成す物語の一部のようです。
この物件には、あなたの生活をより便利にする数々の設備が整っています。安心のオートロックやTVモニターホンは、まるであなたを守る守護神のように感じられ、バイク置場や宅配ボックスも、日々の生活をより快適にしてくれる友人のように寄り添います。敷地内のゴミ置場も、清潔感が漂い、心地良い生活環境を保つための重要な役割を果たしています。
夕暮れ時、このアーバンパーク三ノ輪2 1302での生活はまるで映画のワンシーンのようです。おしゃれなキッチンからは、美味しそうな香りが漂い、友人たちを招いての食事会も楽しみに。料理が並ぶテーブルを囲みながら、笑い声が響き渡り、時が経つのを忘れさせるひとときを過ごすことができるでしょう。
さらに、徒歩3分の地点に広がる三ノ輪駅からは、東京のメトロ網があなたを新たな冒険へと導きます。文化や芸術が色濃く息づくこの地での生活は、単なる日常を超え、心の豊かさを育む体験となることでしょう。
アーバンパーク三ノ輪2 1302は、ただの住まいではなく、あなたの人生を再構築するための舞台です。この空間での生活が、あなたにとって忘れられない思い出を紡ぐことでしょう。あなたがここで新たな物語を描くのを心待ちにしています。さあ、あなたの未来のページをめくりましょう。
この美しい居住空間は、エレベーターで1302階へと昇ります。ドアが開くと、目に映るのは優雅で洗練された内部のデザイン。25…アーバンパーク三ノ輪2 1302は、あなたを新たな物語の舞台へと誘います。東京都台東区竜泉2-19-17、ここはまるで時間を超えたような静謐な空間が広がっており、あなたの新しい生活が始まるのを待っています。今回は、特別なこの場所がどれほど魅力的か、あなたにお伝えいたします。
この美しい居住空間は、エレベーターで1302階へと昇ります。ドアが開くと、目に映るのは優雅で洗練された内部のデザイン。25.91㎡の空間が、あなたの夢を具現化するために用意されています。洋室は8.32帖、心地良いマットが足元を包み、その上を歩くたびにやわらかな触覚が広がることでしょう。一歩踏み入れれば、そこにはあなたのあたたかいおもてなしの空間が待っているのです。
このアーバンパーク三ノ輪2 1302は、ただの物件ではありません。まるで古い友人のように、あなたの生活をリズムよく彩ります。朝、窓から差し込む東の光が、あなたの起床を優しく促し、あなたはその光に包まれながら新しい一日を迎えることでしょう。そして、ふと窓の外を眺めれば、日常の喧騒とは対照的な穏やかな風景が広がります。周辺の歴史ある街並みは、まるで過去と現在を織り成す物語の一部のようです。
この物件には、あなたの生活をより便利にする数々の設備が整っています。安心のオートロックやTVモニターホンは、まるであなたを守る守護神のように感じられ、バイク置場や宅配ボックスも、日々の生活をより快適にしてくれる友人のように寄り添います。敷地内のゴミ置場も、清潔感が漂い、心地良い生活環境を保つための重要な役割を果たしています。
夕暮れ時、このアーバンパーク三ノ輪2 1302での生活はまるで映画のワンシーンのようです。おしゃれなキッチンからは、美味しそうな香りが漂い、友人たちを招いての食事会も楽しみに。料理が並ぶテーブルを囲みながら、笑い声が響き渡り、時が経つのを忘れさせるひとときを過ごすことができるでしょう。
さらに、徒歩3分の地点に広がる三ノ輪駅からは、東京のメトロ網があなたを新たな冒険へと導きます。文化や芸術が色濃く息づくこの地での生活は、単なる日常を超え、心の豊かさを育む体験となることでしょう。
アーバンパーク三ノ輪2 1302は、ただの住まいではなく、あなたの人生を再構築するための舞台です。この空間での生活が、あなたにとって忘れられない思い出を紡ぐことでしょう。あなたがここで新たな物語を描くのを心待ちにしています。さあ、あなたの未来のページをめくりましょう。
バイブルスコア
バイブルスコア: 30.7
平均的なスコアです。
※バイブルスコア詳細はこちら
バイブルスコアとは独自のAI機械学習技術を利用した物件評価システムで、物件のおすすめ度を示します。最高得点は100点で、スコアが高いほど、よりおすすめの物件と評価されています。
写真
契約条件
| 賃料 | 予想金額:100,000〜120,000円程度 | 管理費 | 予想金額:13,000〜17,000円程度 |
| 礼金 | 非公開(アーカイブ) | 敷金 | 非公開(アーカイブ) |
| フリーレント | なし | 平米数 | 25.91㎡ |
| 間取り | 1K | 大型収納 | なし |
| 契約期間 | 2年 | 方角 | 東 |
| 更新料 | 1ヶ月 | 契約形態 | 普通賃貸借契約 |
| 取引態様 | 媒介 | 内見状況 | 入居中 |
| 入居時期 | 入居中 | SOHO・事務所 | 不可 |
| ペット | ペット可 | 間取り内訳 | 洋:8.32 |
| キャンペーン情報・備考 | 本情報は賃料改定交渉の資料作成、収益物件の利回り試算、周辺エリアや最寄り駅の坪単価分析、次回募集開始時期の予測などにご活用いただけます。 | ||
※「どの不動産に頼めばいいのか分からない」「信頼できる営業マンの話を聞きたい」「一番親切な会社と契約したい」とお悩みの方におすすめなのが「高級賃貸バイブル」です。
高級賃貸バイブルは業界10年以上の熟練スタッフ群がお客様ファーストで対応します。
下記ボタンから、まずは無料でご相談下さい。
※内覧をご希望の際には、どうぞ物件のエントランス前にてお待ち合わせくださいませ。ご内覧後は、同じ場所でお別れとさせていただきます。お客様のご都合に合わせたスムーズなご案内を心がけておりますので、ご質問等がございましたら何なりとお申し付けください。 物件概要
| 物件名 |
| 築年月 |
|
|---|---|---|---|
| 所在地 | |||
| 交通 | |||
| 総戸数 |
| 総階数 |
|
| 構造 |
| ||
地図
物件までの道のりは、「拡大地図を表示」をクリックしてナビ機能をご利用ください。
部屋設備













建物設備

TVモニターホン

エレベーター

オートロック

バイク置場

宅配ボックス

敷地内ゴミ置場

管理人

駐車場平置き

駐輪場
アーバンパーク三ノ輪2の現在募集中のお部屋
- No rooms found for this property.























