
| 賃料 | 予想金額:96,000〜116,000円程度 | 管理費 | 予想金額:13,000〜17,000円程度 |
| 礼金/敷金 | 非公開(アーカイブ) | 平米数 | 26.68㎡ |
| 初期費用概算(参考) | 目安:34,900〜134,900 円 | みなし賃料(月額・参考) | 110,560〜130,560 円 |
| 備考 | 本ページは過去募集のアーカイブです。表示の金額は周辺相場・過去募集を踏まえた参考レンジであり、実際の契約金額・条件ではありません。 | ||
※上記みなし賃料(月額)は仲介手数料割引・無料&キャッシュバックを加味した高級賃貸バイブル限定の金額です。一般的なみなし賃料とは異なります。
【建物ページ】アーバンパーク三ノ輪2の詳細・最新空室はこちら▶▶選ばれる理由
仲介手数料無料・キャンペーン情報(毎月15名様限定)
〇引っ越しお祝い金116600円プレゼント(キャッシュバック)
〇仲介手数料無料キャンペーン
アーバンパーク三ノ輪2 303の口コミ・レビュー
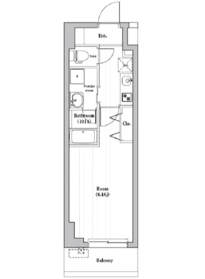
アーバンパーク三ノ輪2 303。この名を耳にした瞬間、心の中に小さな波紋が広がります。東京都台東区竜泉の静謐な街並みの中に佇むこの物件は、まるで都会のオアシスのように、あなたの暮らしに新たな息吹を吹き込む存在です。303号室は、東の光を優しく受け入れ、毎朝の目覚めを祝福する太陽の贈り物。専有面積26.68㎡、1Kというコンパクトな空間は、あなたの個性を存分に引き出すキャンバスとなります。
入った…アーバンパーク三ノ輪2 303。この名を耳にした瞬間、心の中に小さな波紋が広がります。東京都台東区竜泉の静謐な街並みの中に佇むこの物件は、まるで都会のオアシスのように、あなたの暮らしに新たな息吹を吹き込む存在です。303号室は、東の光を優しく受け入れ、毎朝の目覚めを祝福する太陽の贈り物。専有面積26.68㎡、1Kというコンパクトな空間は、あなたの個性を存分に引き出すキャンバスとなります。
入った瞬間に広がる洋8.48帖の空間は、まるで心の中に広がる無限の可能性を象徴しています。壁に寄りかかり、窓を開け放てば、朝の新鮮な空気が肌に触れ、心地よい風が髪をなびかせます。コーヒーの香りが漂い、朝の光と共に始まる一日。あなたの生活が映画のワンシーンのように、豊かな感情で満たされていく様子が目に浮かびます。たった一杯のコーヒーに、特別な名シーンを捧げることができるのです。
アーバンパーク三ノ輪2 303の魅力はその立地にも宿っています。東京メトロ日比谷線三ノ輪駅から徒歩3分の距離に位置し、日常生活の利便性が約束されています。通勤や買い物、友人との食事など、あらゆるシーンでスムーズな移動が可能。さらに、この街には歴史と文化が息づいています。古くから続く商店街の喧騒や、風情ある小路を散策すれば、まるでタイムスリップしたかのように、時の流れを感じられることでしょう。
この物件は、住む人々の安全を守るために様々な設備を整えています。エレベーター、オートロック、管理人の存在は、安心感をもたらし、あなたの暮らしをさらに豊かにする要素です。また、宅配ボックスや駐輪場も完備されており、便利さが日常のストレスを軽減してくれます。
アーバンパーク三ノ輪2 303は、まさに特別な存在です。自分だけのパーソナルスペースを持ちながら、周囲の喧騒からは少し距離を置くことができる、そんな絶妙なバランスがこの物件を際立たせています。新たに訪れた友人を招き入れると、彼らも思わず笑顔になり、心地よい雰囲気の中で食事を囲む姿が浮かびます。大切な人と共に過ごす時間が、アーバンパーク三ノ輪2 303の中で刻まれ、その思い出は永遠に心に残ります。
この場所での生活は、まるで上質な映画のワンシーンのように、日常の一瞬一瞬が特別に感じられることを約束します。アーバンパーク三ノ輪2 303で、新しい物語を始めてみませんか?あなたの暮らしが、この素晴らしい空間で豊かに彩られ、心に響く瞬間に溢れることでしょう。
入った…アーバンパーク三ノ輪2 303。この名を耳にした瞬間、心の中に小さな波紋が広がります。東京都台東区竜泉の静謐な街並みの中に佇むこの物件は、まるで都会のオアシスのように、あなたの暮らしに新たな息吹を吹き込む存在です。303号室は、東の光を優しく受け入れ、毎朝の目覚めを祝福する太陽の贈り物。専有面積26.68㎡、1Kというコンパクトな空間は、あなたの個性を存分に引き出すキャンバスとなります。
入った瞬間に広がる洋8.48帖の空間は、まるで心の中に広がる無限の可能性を象徴しています。壁に寄りかかり、窓を開け放てば、朝の新鮮な空気が肌に触れ、心地よい風が髪をなびかせます。コーヒーの香りが漂い、朝の光と共に始まる一日。あなたの生活が映画のワンシーンのように、豊かな感情で満たされていく様子が目に浮かびます。たった一杯のコーヒーに、特別な名シーンを捧げることができるのです。
アーバンパーク三ノ輪2 303の魅力はその立地にも宿っています。東京メトロ日比谷線三ノ輪駅から徒歩3分の距離に位置し、日常生活の利便性が約束されています。通勤や買い物、友人との食事など、あらゆるシーンでスムーズな移動が可能。さらに、この街には歴史と文化が息づいています。古くから続く商店街の喧騒や、風情ある小路を散策すれば、まるでタイムスリップしたかのように、時の流れを感じられることでしょう。
この物件は、住む人々の安全を守るために様々な設備を整えています。エレベーター、オートロック、管理人の存在は、安心感をもたらし、あなたの暮らしをさらに豊かにする要素です。また、宅配ボックスや駐輪場も完備されており、便利さが日常のストレスを軽減してくれます。
アーバンパーク三ノ輪2 303は、まさに特別な存在です。自分だけのパーソナルスペースを持ちながら、周囲の喧騒からは少し距離を置くことができる、そんな絶妙なバランスがこの物件を際立たせています。新たに訪れた友人を招き入れると、彼らも思わず笑顔になり、心地よい雰囲気の中で食事を囲む姿が浮かびます。大切な人と共に過ごす時間が、アーバンパーク三ノ輪2 303の中で刻まれ、その思い出は永遠に心に残ります。
この場所での生活は、まるで上質な映画のワンシーンのように、日常の一瞬一瞬が特別に感じられることを約束します。アーバンパーク三ノ輪2 303で、新しい物語を始めてみませんか?あなたの暮らしが、この素晴らしい空間で豊かに彩られ、心に響く瞬間に溢れることでしょう。
バイブルスコア
バイブルスコア: 37.5
平均的なスコアです。
※バイブルスコア詳細はこちら
バイブルスコアとは独自のAI機械学習技術を利用した物件評価システムで、物件のおすすめ度を示します。最高得点は100点で、スコアが高いほど、よりおすすめの物件と評価されています。
写真
契約条件
| 賃料 | 予想金額:96,000〜116,000円程度 | 管理費 | 予想金額:13,000〜17,000円程度 |
| 礼金 | 非公開(アーカイブ) | 敷金 | 非公開(アーカイブ) |
| フリーレント | なし | 平米数 | 26.68㎡ |
| 間取り | 1K | 大型収納 | なし |
| 契約期間 | 2年 | 方角 | 東 |
| 更新料 | 1ヶ月 | 契約形態 | 普通賃貸借契約 |
| 取引態様 | 媒介 | 内見状況 | 入居中 |
| 入居時期 | 入居中 | SOHO・事務所 | 不可 |
| ペット | ペット可 | 間取り内訳 | 洋:8.48 |
| キャンペーン情報・備考 | 本情報は賃料改定交渉の資料作成、収益物件の利回り試算、周辺エリアや最寄り駅の坪単価分析、次回募集開始時期の予測などにご活用いただけます。 | ||
※「どの不動産に頼めばいいのか分からない」「信頼できる営業マンの話を聞きたい」「一番親切な会社と契約したい」とお悩みの方におすすめなのが「高級賃貸バイブル」です。
高級賃貸バイブルは業界10年以上の熟練スタッフ群がお客様ファーストで対応します。
下記ボタンから、まずは無料でご相談下さい。
※内覧をご希望の際には、どうぞ物件のエントランス前にてお待ち合わせくださいませ。ご内覧後は、同じ場所でお別れとさせていただきます。お客様のご都合に合わせたスムーズなご案内を心がけておりますので、ご質問等がございましたら何なりとお申し付けください。 物件概要
| 物件名 |
| 築年月 |
|
|---|---|---|---|
| 所在地 | |||
| 交通 | |||
| 総戸数 |
| 総階数 |
|
| 構造 |
| ||
地図
物件までの道のりは、「拡大地図を表示」をクリックしてナビ機能をご利用ください。
部屋設備













建物設備

TVモニターホン

エレベーター

オートロック

バイク置場

宅配ボックス

敷地内ゴミ置場

管理人

駐車場平置き

駐輪場
アーバンパーク三ノ輪2の現在募集中のお部屋
- No rooms found for this property.























