
| 賃料 | 予想金額:390,000〜410,000円程度 | 管理費 | 予想金額:8,000〜12,000円程度 |
| 礼金/敷金 | 非公開(アーカイブ) | 平米数 | 79.85㎡ |
| 初期費用概算(参考) | 目安:1,498,300〜1,598,300 円 | みなし賃料(月額・参考) | 423,923〜443,923 円 |
| 備考 | 本ページは過去募集のアーカイブです。表示の金額は周辺相場・過去募集を踏まえた参考レンジであり、実際の契約金額・条件ではありません。 | ||
※上記みなし賃料(月額)は仲介手数料割引・無料&キャッシュバックを加味した高級賃貸バイブル限定の金額です。一般的なみなし賃料とは異なります。
【建物ページ】Huit神楽坂の詳細・最新空室はこちら▶▶選ばれる理由
仲介手数料無料・キャンペーン情報(毎月15名様限定)
〇仲介手数料割引キャンペーン
Huit神楽坂 401の口コミ・レビュー
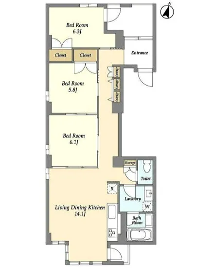
Huit神楽坂 401。あなたがここに足を踏み入れる瞬間、まるで映画のワンシーンに引き込まれるような感覚に包まれます。この特別な空間は、東京都新宿区中町8丁目に位置し、南東を見晴らす素晴らしい眺望が魅力です。あなたの目の前に広がる79.85㎡の広さは、心地よい居住空間を提供するだけではなく、生活に少しの余裕をもたらしてくれます。
この物件は、住む人に語りかけてきます。「私の中で、あなたの物語を紡…Huit神楽坂 401。あなたがここに足を踏み入れる瞬間、まるで映画のワンシーンに引き込まれるような感覚に包まれます。この特別な空間は、東京都新宿区中町8丁目に位置し、南東を見晴らす素晴らしい眺望が魅力です。あなたの目の前に広がる79.85㎡の広さは、心地よい居住空間を提供するだけではなく、生活に少しの余裕をもたらしてくれます。
この物件は、住む人に語りかけてきます。「私の中で、あなたの物語を紡いでみませんか?」と。広々とした14.1帖のLDKは、友人たちと集う楽しげな会話や家族との心温まるひとときを演出します。窓から射し込む柔らかな光が、多彩な色合いを映し出し、日々の暮らしを明るく、そして華やかに彩ります。
あなたの生活は、ここHuit神楽坂 401で贅沢に演出されるのです。6.3帖、6.1帖、5.8帖の洋室は、まるで静かな楽器のように、あなたのプライベートな時間を大切に守ってくれます。ドアを開けると、穏やかな香りが心を落ち着け、まるでこの空間があなたを包み込んでくれるかのよう。柔らかなカーペットの触感が、足元を優しくつつむことで、仕事の疲れを癒し、心の安らぎを与えてくれます。
Huit神楽坂 401には、最新の設備が完備されています。TVモニターホンは、まるで安全な城壁のように、あなたの家を守ります。デザイナーズの美しい内装が、まるでアートギャラリーの中にいるような錯覚を覚えさせ、宅配ボックスが、あなたのライフスタイルをより一層便利にしてくれるのです。
この地域は、小さなカフェやアートスペースに溢れ、文化と歴史が息づく場所です。道を歩けば、心地よいコーヒーの香りが漂い、アートに触れることで心が躍ります。牛込神楽坂駅から徒歩4分という立地は、まるで忙しい日常の中で、ひとときのゆとりを与えてくれるかのようです。
Huit神楽坂 401は、単なる住まいではありません。あなた自身が映画の主人公となり、日常を豊かにする舞台なのです。ここでの生活を通じて、思い出のシーンをいくつも作り上げていくことができるでしょう。あなたの物語は、Huit神楽坂 401から始まります。この美しい空間が、あなたを新たな感動へと導いてくれることでしょう。
この物件は、住む人に語りかけてきます。「私の中で、あなたの物語を紡…Huit神楽坂 401。あなたがここに足を踏み入れる瞬間、まるで映画のワンシーンに引き込まれるような感覚に包まれます。この特別な空間は、東京都新宿区中町8丁目に位置し、南東を見晴らす素晴らしい眺望が魅力です。あなたの目の前に広がる79.85㎡の広さは、心地よい居住空間を提供するだけではなく、生活に少しの余裕をもたらしてくれます。
この物件は、住む人に語りかけてきます。「私の中で、あなたの物語を紡いでみませんか?」と。広々とした14.1帖のLDKは、友人たちと集う楽しげな会話や家族との心温まるひとときを演出します。窓から射し込む柔らかな光が、多彩な色合いを映し出し、日々の暮らしを明るく、そして華やかに彩ります。
あなたの生活は、ここHuit神楽坂 401で贅沢に演出されるのです。6.3帖、6.1帖、5.8帖の洋室は、まるで静かな楽器のように、あなたのプライベートな時間を大切に守ってくれます。ドアを開けると、穏やかな香りが心を落ち着け、まるでこの空間があなたを包み込んでくれるかのよう。柔らかなカーペットの触感が、足元を優しくつつむことで、仕事の疲れを癒し、心の安らぎを与えてくれます。
Huit神楽坂 401には、最新の設備が完備されています。TVモニターホンは、まるで安全な城壁のように、あなたの家を守ります。デザイナーズの美しい内装が、まるでアートギャラリーの中にいるような錯覚を覚えさせ、宅配ボックスが、あなたのライフスタイルをより一層便利にしてくれるのです。
この地域は、小さなカフェやアートスペースに溢れ、文化と歴史が息づく場所です。道を歩けば、心地よいコーヒーの香りが漂い、アートに触れることで心が躍ります。牛込神楽坂駅から徒歩4分という立地は、まるで忙しい日常の中で、ひとときのゆとりを与えてくれるかのようです。
Huit神楽坂 401は、単なる住まいではありません。あなた自身が映画の主人公となり、日常を豊かにする舞台なのです。ここでの生活を通じて、思い出のシーンをいくつも作り上げていくことができるでしょう。あなたの物語は、Huit神楽坂 401から始まります。この美しい空間が、あなたを新たな感動へと導いてくれることでしょう。
バイブルスコア
バイブルスコア: 26.3
平均的なスコアです。
※バイブルスコア詳細はこちら
バイブルスコアとは独自のAI機械学習技術を利用した物件評価システムで、物件のおすすめ度を示します。最高得点は100点で、スコアが高いほど、よりおすすめの物件と評価されています。
写真
現在写真が登録されていません契約条件
| 賃料 | 予想金額:390,000〜410,000円程度 | 管理費 | 予想金額:8,000〜12,000円程度 |
| 礼金 | 非公開(アーカイブ) | 敷金 | 非公開(アーカイブ) |
| フリーレント | なし | 平米数 | 79.85㎡ |
| 間取り | 3LDK | 大型収納 | なし |
| 契約期間 | 2年 | 方角 | 南東 |
| 更新料 | 1ヶ月 | 契約形態 | 普通賃貸借契約 |
| 取引態様 | 媒介 | 内見状況 | 入居中 |
| 入居時期 | 入居中 | SOHO・事務所 | 不可 |
| ペット | 不可 | 間取り内訳 | 洋:6.3 洋:6.1 洋:5.8 LDK:14.1 |
| キャンペーン情報・備考 | 本情報は賃料改定交渉の資料作成、収益物件の利回り試算、周辺エリアや最寄り駅の坪単価分析、次回募集開始時期の予測などにご活用いただけます。 | ||
※「どの不動産に頼めばいいのか分からない」「信頼できる営業マンの話を聞きたい」「一番親切な会社と契約したい」とお悩みの方におすすめなのが「高級賃貸バイブル」です。
高級賃貸バイブルは業界10年以上の熟練スタッフ群がお客様ファーストで対応します。
下記ボタンから、まずは無料でご相談下さい。
※内覧をご希望の際には、どうぞ物件のエントランス前にてお待ち合わせくださいませ。ご内覧後は、同じ場所でお別れとさせていただきます。お客様のご都合に合わせたスムーズなご案内を心がけておりますので、ご質問等がございましたら何なりとお申し付けください。 物件概要
| 物件名 |
| 築年月 |
|
|---|---|---|---|
| 所在地 | |||
| 交通 | |||
| 総戸数 |
| 総階数 |
|
| 構造 |
| ||
地図
物件までの道のりは、「拡大地図を表示」をクリックしてナビ機能をご利用ください。
部屋設備













建物設備

TVモニターホン

宅配ボックス
Huit神楽坂の現在募集中のお部屋
- Huit神楽坂 302 - 間取り: 3LDK - 賃料: 41万円
- Huit神楽坂 302 - 間取り: 3LDK - 賃料: 41万円
