
| 賃料 | 予想金額:390,000〜410,000円程度 | 管理費 | 予想金額:18,000〜22,000円程度 |
| 礼金/敷金 | 非公開(アーカイブ) | 平米数 | 54.09㎡ |
| 初期費用概算(参考) | 目安:1,496,800〜1,596,800 円 | みなし賃料(月額・参考) | 433,892〜453,892 円 |
| 備考 | 本ページは過去募集のアーカイブです。表示の金額は周辺相場・過去募集を踏まえた参考レンジであり、実際の契約金額・条件ではありません。 | ||
※上記みなし賃料(月額)は仲介手数料割引・無料&キャッシュバックを加味した高級賃貸バイブル限定の金額です。一般的なみなし賃料とは異なります。
【建物ページ】グランリビオ表参道の詳細・最新空室はこちら▶▶選ばれる理由
仲介手数料無料・キャンペーン情報(毎月15名様限定)
〇仲介手数料割引キャンペーン
グランリビオ表参道 9階 54.09㎡の口コミ・レビュー
グランリビオ表参道 9階 54.09㎡。この物件はまるで洗練された都会のオアシスのように、あなたを特別な生活へと誘います。渋谷の街の喧騒がわずかに遠く感じられる南東の窓からは、温かな陽射しが優しく舞い込んできて、心地よい開放感に包まれることでしょう。高雅な階数、9階からの眺望は、まるで絵画の中にいるかのように、洗練された東京の景色を一望させ、煌めく夜景はまさに宝石のように美しく、あなたの日常に特別…グランリビオ表参道 9階 54.09㎡。この物件はまるで洗練された都会のオアシスのように、あなたを特別な生活へと誘います。渋谷の街の喧騒がわずかに遠く感じられる南東の窓からは、温かな陽射しが優しく舞い込んできて、心地よい開放感に包まれることでしょう。高雅な階数、9階からの眺望は、まるで絵画の中にいるかのように、洗練された東京の景色を一望させ、煌めく夜景はまさに宝石のように美しく、あなたの日常に特別なアクセントを添えてくれます。
グランリビオ表参道の54.09㎡は、あなたの個人的な美術館のような空間を提供します。まるで自分だけのアート作品が展覧されているかのように、LDK10帖の広々とした空間が、日々の創造性をかき立てます。このフロアプランは、豊かな生活を演出し、友人との集まりや家族の温もりを感じる場として理想的です。自然光が差し込むリビングで心地よいティータイムを楽しみながら、香ばしい紅茶の香りに包まれ、ゆったりとした時間を過ごしてみませんか。
洋室6帖と洋室4.5帖は、あなたの個人空間を優雅に彩ります。朝起きたとき、ふんわりとした寝具の感触を楽しみながら、心地よい朝日を浴びると、まるで目覚めの儀式が始まるようです。優しい光の中で静かに時間を過ごす、そんな贅沢な朝のひとときは、まさに特別なものです。
さらに、グランリビオ表参道は、24時間管理のセキュリティにより、安心感も手に入れています。オートロックやTVモニターホンは、まるであなたの城を守る騎士のよう。自宅にいる時だけでなく、外出時も心安らかに過ごせます。宅配ボックスやラウンジといった共用施設は、日々の生活に便利さをもたらし、エレガントかつ快適な日常をサポートします。
この物件が位置する渋谷区は、東京の中心地としての文化と芸術の息吹が感じられる場所です。近隣にはアートギャラリーやセレクトショップが点在しており、散歩するだけでもインスピレーションが満ち溢れています。なだらかな坂を上ると、歴史深い神社や美術館が待ち受けており、あなたの生活と感性を豊かに育むことでしょう。
グランリビオ表参道 9階 54.09㎡での暮らしは、まるで映画のワンシーンのような美しさを伴います。日常生活の中に美を見出し、心豊かに過ごすことができる場所。あなたの人生の舞台として、ぜひこの特別な空間をお選びください。グランリビオ表参道での新しい物語が、待っています。
グランリビオ表参道の54.09㎡は、あなたの個人的な美術館のような空間を提供します。まるで自分だけのアート作品が展覧されているかのように、LDK10帖の広々とした空間が、日々の創造性をかき立てます。このフロアプランは、豊かな生活を演出し、友人との集まりや家族の温もりを感じる場として理想的です。自然光が差し込むリビングで心地よいティータイムを楽しみながら、香ばしい紅茶の香りに包まれ、ゆったりとした時間を過ごしてみませんか。
洋室6帖と洋室4.5帖は、あなたの個人空間を優雅に彩ります。朝起きたとき、ふんわりとした寝具の感触を楽しみながら、心地よい朝日を浴びると、まるで目覚めの儀式が始まるようです。優しい光の中で静かに時間を過ごす、そんな贅沢な朝のひとときは、まさに特別なものです。
さらに、グランリビオ表参道は、24時間管理のセキュリティにより、安心感も手に入れています。オートロックやTVモニターホンは、まるであなたの城を守る騎士のよう。自宅にいる時だけでなく、外出時も心安らかに過ごせます。宅配ボックスやラウンジといった共用施設は、日々の生活に便利さをもたらし、エレガントかつ快適な日常をサポートします。
この物件が位置する渋谷区は、東京の中心地としての文化と芸術の息吹が感じられる場所です。近隣にはアートギャラリーやセレクトショップが点在しており、散歩するだけでもインスピレーションが満ち溢れています。なだらかな坂を上ると、歴史深い神社や美術館が待ち受けており、あなたの生活と感性を豊かに育むことでしょう。
グランリビオ表参道 9階 54.09㎡での暮らしは、まるで映画のワンシーンのような美しさを伴います。日常生活の中に美を見出し、心豊かに過ごすことができる場所。あなたの人生の舞台として、ぜひこの特別な空間をお選びください。グランリビオ表参道での新しい物語が、待っています。
バイブルスコア
バイブルスコア: 30
平均的なスコアです。
※バイブルスコア詳細はこちら
バイブルスコアとは独自のAI機械学習技術を利用した物件評価システムで、物件のおすすめ度を示します。最高得点は100点で、スコアが高いほど、よりおすすめの物件と評価されています。
写真
契約条件
| 賃料 | 予想金額:390,000〜410,000円程度 | 管理費 | 予想金額:18,000〜22,000円程度 |
| 礼金 | 非公開(アーカイブ) | 敷金 | 非公開(アーカイブ) |
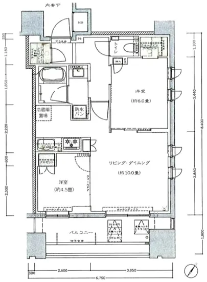
| フリーレント | なし | 平米数 | 54.09㎡ |
| 間取り | 2LDK | 大型収納 | WIC+SIC |
| 契約期間 | 備考を参照 | 方角 | 南東 |
| 更新料 | 備考を参照 | 契約形態 | 定期借家契約 |
| 取引態様 | 媒介 | 内見状況 | 入居中 |
| 入居時期 | 入居中 | SOHO・事務所 | 不可 |
| ペット | 不可 | 間取り内訳 | 洋:6 洋:4.5 LDK:10 |
| キャンペーン情報・備考 | 本情報は賃料改定交渉の資料作成、収益物件の利回り試算、周辺エリアや最寄り駅の坪単価分析、次回募集開始時期の予測などにご活用いただけます。 | ||
※「どの不動産に頼めばいいのか分からない」「信頼できる営業マンの話を聞きたい」「一番親切な会社と契約したい」とお悩みの方におすすめなのが「高級賃貸バイブル」です。
高級賃貸バイブルは業界10年以上の熟練スタッフ群がお客様ファーストで対応します。
下記ボタンから、まずは無料でご相談下さい。
※内覧をご希望の際には、どうぞ物件のエントランス前にてお待ち合わせくださいませ。ご内覧後は、同じ場所でお別れとさせていただきます。お客様のご都合に合わせたスムーズなご案内を心がけておりますので、ご質問等がございましたら何なりとお申し付けください。 物件概要
| 物件名 |
| 築年月 |
|
|---|---|---|---|
| 所在地 | |||
| 交通 | |||
| 総戸数 |
| 総階数 |
|
| 構造 |
| ||
地図
物件までの道のりは、「拡大地図を表示」をクリックしてナビ機能をご利用ください。
部屋設備














建物設備

24時間管理

TVモニターホン

エレベーター

オートロック

バイク置場

ラウンジ

宅配ボックス

敷地内ゴミ置場

管理人

駐車場平置き

駐車場機械式

駐輪場
グランリビオ表参道の現在募集中のお部屋
- グランリビオ表参道 8階 52.62㎡ - 間取り: 2LDK - 賃料: 47万円







