
| 賃料 | 予想金額:178,000〜198,000円程度 | 管理費 | 予想金額:5,000〜9,000円程度 |
| 礼金/敷金 | 非公開(アーカイブ) | 平米数 | 40.92㎡ |
| 初期費用概算(参考) | 目安:561,000〜661,000 円 | みなし賃料(月額・参考) | 193,813〜213,813 円 |
| 備考 | 本ページは過去募集のアーカイブです。表示の金額は周辺相場・過去募集を踏まえた参考レンジであり、実際の契約金額・条件ではありません。 | ||
※上記みなし賃料(月額)は仲介手数料割引・無料&キャッシュバックを加味した高級賃貸バイブル限定の金額です。一般的なみなし賃料とは異なります。
【建物ページ】レジデンス市谷仲之町の詳細・最新空室はこちら▶▶選ばれる理由
仲介手数料無料・キャンペーン情報(毎月15名様限定)
〇仲介手数料無料キャンペーン
レジデンス市谷仲之町 206の口コミ・レビュー
レジデンス市谷仲之町 206は、まるで静かな森の中にある隠れ家のように、あなたの想像を超える生活空間を提供します。この物件は、ただの住まいではなく、一つの物語の舞台です。専有面積40.92㎡に収められたあなたの新しい日常は、柔らかな南の光が差し込む洋室4.4帖と、心地よいつながりをもたらすLDK10.6帖から構成されています。この空間は、ただの居住空間ではなく、生活そのものが芸術であり、日々のしあ…レジデンス市谷仲之町 206は、まるで静かな森の中にある隠れ家のように、あなたの想像を超える生活空間を提供します。この物件は、ただの住まいではなく、一つの物語の舞台です。専有面積40.92㎡に収められたあなたの新しい日常は、柔らかな南の光が差し込む洋室4.4帖と、心地よいつながりをもたらすLDK10.6帖から構成されています。この空間は、ただの居住空間ではなく、生活そのものが芸術であり、日々のしあわせを紡ぎ出すキャンバスなのです。
レジデンス市谷仲之町 206に足を踏み入れると、まずは静謐な空気があなたを包み込みます。穏やかな陽射しが窓から注ぎ込み、床に落ちる影がまるで時の流れを感じさせるかのように、あなたの心を穏やかにします。日常の中で感じることのできる小さな幸せ、例えば、朝のコーヒーの香りや、夜の静けさの中で広がる温もりを存分に味わえる場所なのです。
オートロック付きのエントランスは、まるで大切な宝物を守る宝石箱のように、安心感をもたらします。仮に外の喧騒が耳に入ってきても、ここではその全てを忘れることができるでしょう。宅配ボックスも完備されており、忙しいあなたの生活の手助けを陰ながら行います。まるで忠実な執事のように、あなたの大切な荷物を見守っているのです。
都営地下鉄新宿線 曙橋駅から徒歩4分という立地は、都市の喧騒から少し離れ、洗練された生活を志向するあなたにとって、完璧なバランスを保っています。周辺には歴史ある市谷の風情と共に、文化と芸術が息づく街並みが広がっており、日々新たな発見が待ち受けています。夕暮れ時に外へ出て、古い街並みを歩けば、まるで映画の一シーンにいるかのような感覚を楽しめることでしょう。
レジデンス市谷仲之町 206は、あなたの夢見る生活を実現するための舞台です。ここでの毎日は、心に残るシーンを織り成し、あなた自身が物語の主人公として輝くことを約束します。新たな出会いや感動が、日々の生活の中で待っているのです。どうかこの空間で、自分自身を見つめ直し、心の底からくつろげる時間を大切にしてください。あなたの物語の一部となるこの場所は、単なる住まいとしてではなく、あなたの人生の豊かさを育むための大切な拠点となるでしょう。レジデンス市谷仲之町 206での生活は、まさに貴方にとってかけがえのないものであると確信しています。
レジデンス市谷仲之町 206に足を踏み入れると、まずは静謐な空気があなたを包み込みます。穏やかな陽射しが窓から注ぎ込み、床に落ちる影がまるで時の流れを感じさせるかのように、あなたの心を穏やかにします。日常の中で感じることのできる小さな幸せ、例えば、朝のコーヒーの香りや、夜の静けさの中で広がる温もりを存分に味わえる場所なのです。
オートロック付きのエントランスは、まるで大切な宝物を守る宝石箱のように、安心感をもたらします。仮に外の喧騒が耳に入ってきても、ここではその全てを忘れることができるでしょう。宅配ボックスも完備されており、忙しいあなたの生活の手助けを陰ながら行います。まるで忠実な執事のように、あなたの大切な荷物を見守っているのです。
都営地下鉄新宿線 曙橋駅から徒歩4分という立地は、都市の喧騒から少し離れ、洗練された生活を志向するあなたにとって、完璧なバランスを保っています。周辺には歴史ある市谷の風情と共に、文化と芸術が息づく街並みが広がっており、日々新たな発見が待ち受けています。夕暮れ時に外へ出て、古い街並みを歩けば、まるで映画の一シーンにいるかのような感覚を楽しめることでしょう。
レジデンス市谷仲之町 206は、あなたの夢見る生活を実現するための舞台です。ここでの毎日は、心に残るシーンを織り成し、あなた自身が物語の主人公として輝くことを約束します。新たな出会いや感動が、日々の生活の中で待っているのです。どうかこの空間で、自分自身を見つめ直し、心の底からくつろげる時間を大切にしてください。あなたの物語の一部となるこの場所は、単なる住まいとしてではなく、あなたの人生の豊かさを育むための大切な拠点となるでしょう。レジデンス市谷仲之町 206での生活は、まさに貴方にとってかけがえのないものであると確信しています。
バイブルスコア
バイブルスコア: 24.1
平均的なスコアです。
※バイブルスコア詳細はこちら
バイブルスコアとは独自のAI機械学習技術を利用した物件評価システムで、物件のおすすめ度を示します。最高得点は100点で、スコアが高いほど、よりおすすめの物件と評価されています。
写真
現在写真が登録されていません契約条件
| 賃料 | 予想金額:178,000〜198,000円程度 | 管理費 | 予想金額:5,000〜9,000円程度 |
| 礼金 | 非公開(アーカイブ) | 敷金 | 非公開(アーカイブ) |
| フリーレント | なし | 平米数 | 40.92㎡ |
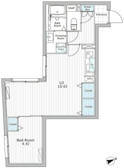
| 間取り | 1LDK | 大型収納 | なし |
| 契約期間 | 2年 | 方角 | 南 |
| 更新料 | 1ヶ月 | 契約形態 | 普通賃貸借契約 |
| 取引態様 | 媒介 | 内見状況 | 入居中 |
| 入居時期 | 入居中 | SOHO・事務所 | 不可 |
| ペット | 不可 | 間取り内訳 | 洋:4.4 LDK:10.6 |
| キャンペーン情報・備考 | 本情報は賃料改定交渉の資料作成、収益物件の利回り試算、周辺エリアや最寄り駅の坪単価分析、次回募集開始時期の予測などにご活用いただけます。 | ||
※「どの不動産に頼めばいいのか分からない」「信頼できる営業マンの話を聞きたい」「一番親切な会社と契約したい」とお悩みの方におすすめなのが「高級賃貸バイブル」です。
高級賃貸バイブルは業界10年以上の熟練スタッフ群がお客様ファーストで対応します。
下記ボタンから、まずは無料でご相談下さい。
※内覧をご希望の際には、どうぞ物件のエントランス前にてお待ち合わせくださいませ。ご内覧後は、同じ場所でお別れとさせていただきます。お客様のご都合に合わせたスムーズなご案内を心がけておりますので、ご質問等がございましたら何なりとお申し付けください。 物件概要
| 物件名 |
| 築年月 |
|
|---|---|---|---|
| 所在地 | |||
| 交通 | |||
| 総戸数 |
| 総階数 |
|
| 構造 |
| ||
地図
物件までの道のりは、「拡大地図を表示」をクリックしてナビ機能をご利用ください。
部屋設備















建物設備

TVモニターホン

オートロック

宅配ボックス

敷地内ゴミ置場

管理人

駐輪場
レジデンス市谷仲之町の現在募集中のお部屋
- No rooms found for this property.
