
| 賃料 | 予想金額:133,000〜153,000円程度 | 管理費 | 予想金額:16,000〜20,000円程度 |
| 礼金/敷金 | 非公開(アーカイブ) | 平米数 | 41.4㎡ |
| 初期費用概算(参考) | 目安:182,900〜282,900 円 | みなし賃料(月額・参考) | 152,873〜172,873 円 |
| 備考 | 本ページは過去募集のアーカイブです。表示の金額は周辺相場・過去募集を踏まえた参考レンジであり、実際の契約金額・条件ではありません。 | ||
※上記みなし賃料(月額)は仲介手数料割引・無料&キャッシュバックを加味した高級賃貸バイブル限定の金額です。一般的なみなし賃料とは異なります。
【建物ページ】レアライズ浅草5の詳細・最新空室はこちら▶▶選ばれる理由
仲介手数料無料・キャンペーン情報(毎月15名様限定)
〇引っ越しお祝い金171600円プレゼント(キャッシュバック)
〇仲介手数料無料キャンペーン
レアライズ浅草5 203の口コミ・レビュー
あなたがこのレアライズ浅草5 203に足を踏み入れると、まるで別世界の扉を開けたかのよ…レアライズ浅草5 203。この名前を耳にした瞬間から、あなたの心の中にひとつの物語が始まります。東京都台東区の静かな街並みに佇むこの素敵な住まいは、ただの物理的空間ではなく、心の拠り所となる場所なのです。北西を向いたその窓からは、季節の移ろいを感じる陽の光が優しく差し込み、日常の中に小さな奇跡を運んできます。
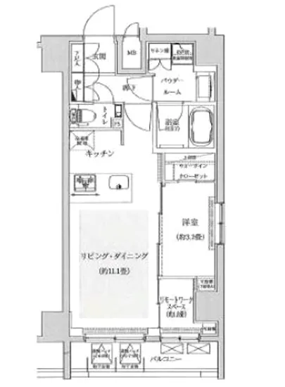
あなたがこのレアライズ浅草5 203に足を踏み入れると、まるで別世界の扉を開けたかのような感覚に包まれるでしょう。41.4㎡の広々とした空間は、心と体を解放し、思わず大きく息を吸い込みたくなるような安心感を与えてくれます。LDK11.1帖の開放的な空間は、あなたの創造力をかき立てるキャンバスとなり、毎日が色鮮やかに彩られていきます。3.2帖の洋室は、静寂と安らぎの時を提供する私だけの聖域。夜には、疲れた心を癒すための読書や音楽鑑賞に最適な場所となります。
公共の喧騒から一歩離れ、管理人の見守りの中で過ごす生活は、まるで上質な映画のワンシーンのようです。モニターホンを通じて訪れる友人や家族との会話が、あなたの心を温かく包み込むことでしょう。エレベーターでの上昇は、日常の中での小さな冒険のように感じられ、平置きの駐車場や駐輪場も利用しやすく、忙しい日々の中での利便性を高めてくれます。バイク置場や宅配ボックスも完備されており、現代のライフスタイルにぴったり寄り添っています。
このレアライズ浅草5 203では、料理を作る楽しさが何倍にも広がります。LDKに立つと、食材の香ばしい香りが漂い、まるでグルメ番組の主人公になったかのように、あなたの手からリズミカルに料理が生み出されていくのです。お皿の上で盛り付けられた色とりどりの料理は、家族や友人との楽しいひとときを演出し、心の奥深くに残る思い出を紡いでいくことでしょう。
また、東京メトロ銀座線の浅草駅へわずか徒歩12分でアクセスできる立地は、生活の利便性と文化の交差点を醸し出します。歴史ある浅草の街で、文化や芸術を体感しながら、日々の生活がより豊かになっていくことでしょう。古いお寺の香りが漂う街並みや、賑やかな観光客の笑い声は、あなたの生活をより一層カラフルに彩ってくれます。このレアライズ浅草5 203こそが、新しい人生の旅路の出発点です。さあ、その扉を開き、夢の住まいを手に入れてください。あなたの新たな章が、ここから始まります。
バイブルスコア
バイブルスコア: 53.8
条件のいい物件です、引っ越しが2か月以内の場合は仮申し込みを検討すべき物件です。
このお部屋は、現在ご入居中のため空室情報はございません。ただし、将来的に募集が開始される際、バイブルスコアにおいて非常に高い評価が期待されます。特にご興味をお持ちの方は、今のうちにブックマークやお気に入りに登録していただくと、募集開始のお知らせをすぐに受け取ることができます。是非ともご検討くださいませ。
※バイブルスコア詳細はこちら
バイブルスコアとは独自のAI機械学習技術を利用した物件評価システムで、物件のおすすめ度を示します。最高得点は100点で、スコアが高いほど、よりおすすめの物件と評価されています。
写真
契約条件
| 賃料 | 予想金額:133,000〜153,000円程度 | 管理費 | 予想金額:16,000〜20,000円程度 |
| 礼金 | 非公開(アーカイブ) | 敷金 | 非公開(アーカイブ) |
| フリーレント | なし | 平米数 | 41.4㎡ |
| 間取り | 1LDK | 大型収納 | WIC |
| 契約期間 | 2年 | 方角 | 北西 |
| 更新料 | 1ヶ月 | 契約形態 | 普通賃貸借契約 |
| 取引態様 | 媒介 | 内見状況 | 入居中 |
| 入居時期 | 入居中 | SOHO・事務所 | 不可 |
| ペット | ペット可 | 間取り内訳 | 洋:3.2 LDK:11.1 |
| キャンペーン情報・備考 | 本情報は賃料改定交渉の資料作成、収益物件の利回り試算、周辺エリアや最寄り駅の坪単価分析、次回募集開始時期の予測などにご活用いただけます。 | ||
※「どの不動産に頼めばいいのか分からない」「信頼できる営業マンの話を聞きたい」「一番親切な会社と契約したい」とお悩みの方におすすめなのが「高級賃貸バイブル」です。
高級賃貸バイブルは業界10年以上の熟練スタッフ群がお客様ファーストで対応します。
下記ボタンから、まずは無料でご相談下さい。
※内覧をご希望の際には、どうぞ物件のエントランス前にてお待ち合わせくださいませ。ご内覧後は、同じ場所でお別れとさせていただきます。お客様のご都合に合わせたスムーズなご案内を心がけておりますので、ご質問等がございましたら何なりとお申し付けください。 物件概要
| 物件名 |
| 築年月 |
|
|---|---|---|---|
| 所在地 | |||
| 交通 | |||
| 総戸数 |
| 総階数 |
|
| 構造 |
| ||
地図
物件までの道のりは、「拡大地図を表示」をクリックしてナビ機能をご利用ください。
部屋設備














建物設備

TVモニターホン

エレベーター

オートロック

バイク置場

宅配ボックス

敷地内ゴミ置場

管理人

駐車場平置き

駐輪場
レアライズ浅草5の現在募集中のお部屋
- No rooms found for this property.



















