
| 賃料 | 予想金額:140,000〜160,000円程度 | 管理費 | 予想金額:16,000〜20,000円程度 |
| 礼金/敷金 | 非公開(アーカイブ) | 平米数 | 41.4㎡ |
| 初期費用概算(参考) | 目安:192,000〜292,000 円 | みなし賃料(月額・参考) | 159,917〜179,917 円 |
| 備考 | 本ページは過去募集のアーカイブです。表示の金額は周辺相場・過去募集を踏まえた参考レンジであり、実際の契約金額・条件ではありません。 | ||
※上記みなし賃料(月額)は仲介手数料割引・無料&キャッシュバックを加味した高級賃貸バイブル限定の金額です。一般的なみなし賃料とは異なります。
【建物ページ】レアライズ浅草5の詳細・最新空室はこちら▶▶選ばれる理由
仲介手数料無料・キャンペーン情報(毎月15名様限定)
〇引っ越しお祝い金180000円プレゼント(キャッシュバック)
〇仲介手数料無料キャンペーン
レアライズ浅草5 903の口コミ・レビュー
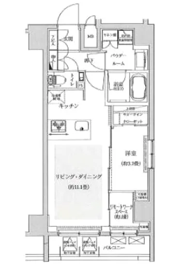
あなたの新しい生活が始まるLDKに身を任せてみてくだ…レアライズ浅草5 903。ここはただの住まいではなく、貴方の日常を映画のような情景に変える特別な舞台です。この物件に一歩足を踏み入れると、まるで貴族の館に招かれたかのような逸品の美しさがあなたを包み込みます。北西の方角に位置し、日々の生活に穏やかな陽射しをもたらすこの空間は、41.4㎡の広さに3.2帖の洋室と11.1帖のLDKを備えています。
あなたの新しい生活が始まるLDKに身を任せてみてください。広々とした空間に映える木の温もりが、まるで温かいひざ掛けのように心を優しく包んでくれます。朝の光が差し込む中、カーテンを開けると、外の景色がまるで絵画のように広がります。通りを行き交う人々の声や、どこからともなく漂ってくる香ばしいパンの匂いが、日常の特別な瞬間を演出してくれます。コーヒーの香りが漂う中、あなたはお気に入りのグラスに注がれた一杯の飲み物を手に取り、まるで映画の主人公になったかのような気持ちに浸るでしょう。
レアライズ浅草5 903のオートロックシステムやエレベーター、宅配ボックスといった先進の設備は、まるであなたの生活を支える守護者のようです。毎日の暮らしをより快適に、より安心なものとするために存在しています。バイク置場や駐輪場も完備されているため、アクティブなライフスタイルを送るあなたには最適です。
周辺には歴史ある浅草エリアの魅力が広がっています。東京メトロ銀座線浅草駅から徒歩12分というアクセスの良さも魅力の一つです。近くにある雷門や浅草寺のような名所は、まるで貴方を古の時代へと誘う旅の扉のようで、散策するたびに新たな発見があるでしょう。地元の文化や芸術に触れながら、日常の喧騒から解放される瞬間が待っています。
夕暮れが訪れる頃、LDKの窓から見える北西の空は、まるでキャンバスに描かれたように美しい色彩に染まります。そこに広がる風景を眺めながら、心が安らぐ瞬間を味わうことができるでしょう。新しい暮らしの中で、あなたがどのような物語を紡いでいくのか、期待が膨らみます。
レアライズ浅草5 903は、ただの住まいではありません。あなたの心に寄り添う、人生の舞台です。ここでの生活があなた自身を豊かにし、素晴らしい体験をもたらすことを心から楽しみにしています。さあ、あなたの新たな物語をここで始めてみませんか。
バイブルスコア
バイブルスコア: 50.2
条件のいい物件です、引っ越しが2か月以内の場合は仮申し込みを検討すべき物件です。
このお部屋は、現在ご入居中のため空室情報はございません。ただし、将来的に募集が開始される際、バイブルスコアにおいて非常に高い評価が期待されます。特にご興味をお持ちの方は、今のうちにブックマークやお気に入りに登録していただくと、募集開始のお知らせをすぐに受け取ることができます。是非ともご検討くださいませ。
※バイブルスコア詳細はこちら
バイブルスコアとは独自のAI機械学習技術を利用した物件評価システムで、物件のおすすめ度を示します。最高得点は100点で、スコアが高いほど、よりおすすめの物件と評価されています。
写真
契約条件
| 賃料 | 予想金額:140,000〜160,000円程度 | 管理費 | 予想金額:16,000〜20,000円程度 |
| 礼金 | 非公開(アーカイブ) | 敷金 | 非公開(アーカイブ) |
| フリーレント | なし | 平米数 | 41.4㎡ |
| 間取り | 1LDK | 大型収納 | WIC |
| 契約期間 | 2年 | 方角 | 北西 |
| 更新料 | 1ヶ月 | 契約形態 | 普通賃貸借契約 |
| 取引態様 | 媒介 | 内見状況 | 入居中 |
| 入居時期 | 入居中 | SOHO・事務所 | 不可 |
| ペット | ペット可 | 間取り内訳 | 洋:3.2 LDK:11.1 |
| キャンペーン情報・備考 | 本情報は賃料改定交渉の資料作成、収益物件の利回り試算、周辺エリアや最寄り駅の坪単価分析、次回募集開始時期の予測などにご活用いただけます。 | ||
※「どの不動産に頼めばいいのか分からない」「信頼できる営業マンの話を聞きたい」「一番親切な会社と契約したい」とお悩みの方におすすめなのが「高級賃貸バイブル」です。
高級賃貸バイブルは業界10年以上の熟練スタッフ群がお客様ファーストで対応します。
下記ボタンから、まずは無料でご相談下さい。
※内覧をご希望の際には、どうぞ物件のエントランス前にてお待ち合わせくださいませ。ご内覧後は、同じ場所でお別れとさせていただきます。お客様のご都合に合わせたスムーズなご案内を心がけておりますので、ご質問等がございましたら何なりとお申し付けください。 物件概要
| 物件名 |
| 築年月 |
|
|---|---|---|---|
| 所在地 | |||
| 交通 | |||
| 総戸数 |
| 総階数 |
|
| 構造 |
| ||
地図
物件までの道のりは、「拡大地図を表示」をクリックしてナビ機能をご利用ください。
部屋設備














建物設備

TVモニターホン

エレベーター

オートロック

バイク置場

宅配ボックス

敷地内ゴミ置場

管理人

駐車場平置き

駐輪場
レアライズ浅草5の現在募集中のお部屋
- No rooms found for this property.



















