
| 賃料 | 予想金額:139,000〜159,000円程度 | 管理費 | 予想金額:16,000〜20,000円程度 |
| 礼金/敷金 | 非公開(アーカイブ) | 平米数 | 41.4㎡ |
| 初期費用概算(参考) | 目安:190,700〜290,700 円 | みなし賃料(月額・参考) | 158,910〜178,910 円 |
| 備考 | 本ページは過去募集のアーカイブです。表示の金額は周辺相場・過去募集を踏まえた参考レンジであり、実際の契約金額・条件ではありません。 | ||
※上記みなし賃料(月額)は仲介手数料割引・無料&キャッシュバックを加味した高級賃貸バイブル限定の金額です。一般的なみなし賃料とは異なります。
【建物ページ】レアライズ浅草5の詳細・最新空室はこちら▶▶選ばれる理由
仲介手数料無料・キャンペーン情報(毎月15名様限定)
〇引っ越しお祝い金178800円プレゼント(キャッシュバック)
〇仲介手数料無料キャンペーン
レアライズ浅草5 803の口コミ・レビュー
靴を脱いで扉を開けると、ふんわりと漂う穏やかな空気が、あな…レアライズ浅草5 803。まるで都会のオアシスとして存在し、静謐な空間に宿る新たな物語を紡ぐお部屋です。東京の喧騒から少し距離を置いた浅草。ここは古き良き日本の文化と現代の洗練が絶妙に交わる場所。あなたを迎えるのは、北西を向いた優雅な803号室。立地は、浅草の名所からも程近く、まるで歴史のページをめくりながら歩くような趣を感じられます。
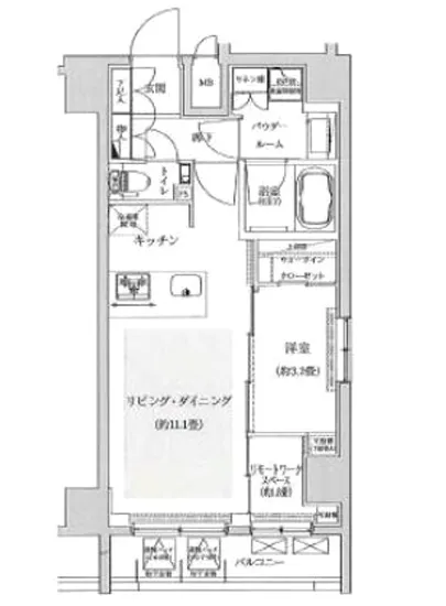
靴を脱いで扉を開けると、ふんわりと漂う穏やかな空気が、あなたの心を包み込みます。41.4㎡の広がりを持つこの空間は、あなたの生活の舞台。LDK11.1帖の広さは、家族や友人とのひとときを彩るために設計されており、開放感あふれる大きな窓からは、夕暮れの空を赤く染め上げる美しい光が差し込みます。心地よい風が、カーテンを揺らし、街の音も、まるで優しい子守唄のように響き渡ります。
続いて、静謐な洋室には、3.2帖の居心地の良い空間が広がり、ここはあなた自身の思索の場。心を落ち着けるアートや、くつろぎのインテリアで飾りつけ、日々の疲れを癒す特別な場所に育ててください。その瞬間、香り立つお茶の香りが心地よく漂ってきます。窓からは緑の景色が広がり、四季折々の美しさがあなたの心に安らぎを与えることでしょう。朝起きて窓を開けた時に感じる新鮮な空気、冬の寒い日にはホットカフェオレを身近に感じ、温かさが身体中をほぐす瞬間が待っています。
レアライズ浅草5 803はただの住まいではありません。ここは、あなたの人生の舞台であり、思い出をひとつひとつ重ねていく場所です。エレベーターやオートロックなどのモダンな設備は、安心と便利さを提供し、忙しい毎日をサポートします。バイク置場や駐輪場も完備され、あなたのライフスタイルを豊かにするための準備が整っています。管理人による細やかな心配りも、嬉しい付加価値です。
さらに、周辺の文化や歴史に触れながら、日々の暮らしを彩ることができます。浮世絵や伝統的な工芸品、そしてアートが彩りを添える浅草の街。ここでの暮らしは、まるで映画のワンシーンのように、日常を特別なものにします。夕暮れ時の浅草寺に訪れ、静かに手を合わせる瞬間、町の温もりを感じることでしょう。また、世界的に有名な雷門へもほんの徒歩の距離。観光客と地元の人々が交わる場所で、あなた自身もその一部となっていくのです。
レアライズ浅草5 803は、あなたにとっての新しい詩を紡ぐ場所。その扉を開けた瞬間から、あなたの物語が始まります。一緒に、この美しい空間で、心に残るシーンを描いていきませんか。
バイブルスコア
バイブルスコア: 50.7
条件のいい物件です、引っ越しが2か月以内の場合は仮申し込みを検討すべき物件です。
このお部屋は、現在ご入居中のため空室情報はございません。ただし、将来的に募集が開始される際、バイブルスコアにおいて非常に高い評価が期待されます。特にご興味をお持ちの方は、今のうちにブックマークやお気に入りに登録していただくと、募集開始のお知らせをすぐに受け取ることができます。是非ともご検討くださいませ。
※バイブルスコア詳細はこちら
バイブルスコアとは独自のAI機械学習技術を利用した物件評価システムで、物件のおすすめ度を示します。最高得点は100点で、スコアが高いほど、よりおすすめの物件と評価されています。
写真
契約条件
| 賃料 | 予想金額:139,000〜159,000円程度 | 管理費 | 予想金額:16,000〜20,000円程度 |
| 礼金 | 非公開(アーカイブ) | 敷金 | 非公開(アーカイブ) |
| フリーレント | なし | 平米数 | 41.4㎡ |
| 間取り | 1LDK | 大型収納 | WIC |
| 契約期間 | 2年 | 方角 | 北西 |
| 更新料 | 1ヶ月 | 契約形態 | 普通賃貸借契約 |
| 取引態様 | 媒介 | 内見状況 | 入居中 |
| 入居時期 | 入居中 | SOHO・事務所 | 不可 |
| ペット | ペット可 | 間取り内訳 | 洋:3.2 LDK:11.1 |
| キャンペーン情報・備考 | 本情報は賃料改定交渉の資料作成、収益物件の利回り試算、周辺エリアや最寄り駅の坪単価分析、次回募集開始時期の予測などにご活用いただけます。 | ||
※「どの不動産に頼めばいいのか分からない」「信頼できる営業マンの話を聞きたい」「一番親切な会社と契約したい」とお悩みの方におすすめなのが「高級賃貸バイブル」です。
高級賃貸バイブルは業界10年以上の熟練スタッフ群がお客様ファーストで対応します。
下記ボタンから、まずは無料でご相談下さい。
※内覧をご希望の際には、どうぞ物件のエントランス前にてお待ち合わせくださいませ。ご内覧後は、同じ場所でお別れとさせていただきます。お客様のご都合に合わせたスムーズなご案内を心がけておりますので、ご質問等がございましたら何なりとお申し付けください。 物件概要
| 物件名 |
| 築年月 |
|
|---|---|---|---|
| 所在地 | |||
| 交通 | |||
| 総戸数 |
| 総階数 |
|
| 構造 |
| ||
地図
物件までの道のりは、「拡大地図を表示」をクリックしてナビ機能をご利用ください。
部屋設備














建物設備

TVモニターホン

エレベーター

オートロック

バイク置場

宅配ボックス

敷地内ゴミ置場

管理人

駐車場平置き

駐輪場
レアライズ浅草5の現在募集中のお部屋
- No rooms found for this property.



















