
| 賃料 | 予想金額:138,000〜158,000円程度 | 管理費 | 予想金額:16,000〜20,000円程度 |
| 礼金/敷金 | 非公開(アーカイブ) | 平米数 | 41.4㎡ |
| 初期費用概算(参考) | 目安:189,400〜289,400 円 | みなし賃料(月額・参考) | 157,904〜177,904 円 |
| 備考 | 本ページは過去募集のアーカイブです。表示の金額は周辺相場・過去募集を踏まえた参考レンジであり、実際の契約金額・条件ではありません。 | ||
※上記みなし賃料(月額)は仲介手数料割引・無料&キャッシュバックを加味した高級賃貸バイブル限定の金額です。一般的なみなし賃料とは異なります。
【建物ページ】レアライズ浅草5の詳細・最新空室はこちら▶▶選ばれる理由
仲介手数料無料・キャンペーン情報(毎月15名様限定)
〇引っ越しお祝い金177600円プレゼント(キャッシュバック)
〇仲介手数料無料キャンペーン
レアライズ浅草5 703の口コミ・レビュー
あなたがこの住まいの扉を開けると、まずは心地よい木の温もりと、洗練されたデザインの調和…レアライズ浅草5 703は、東の街の喧騒を一瞬で忘れさせてくれる、まるで隠れ家のような特別な空間です。この703号室は、41.4㎡という絶妙な専有面積に、一つの物語を詰め込むために生まれてきました。北西を向くこの住まいは、夕暮れ時に柔らかな光を導いてくれる窓からの景色が、心を温める特別なひとときへと誘います。
あなたがこの住まいの扉を開けると、まずは心地よい木の温もりと、洗練されたデザインの調和があなたを包みます。11.1帖のLDKは、まるで映画のワンシーンに飛び込んだかのような開放感。高い天井と広々とした空間が、生活するあなたにクリエイティブな刺激を与え、心身をリフレッシュさせるでしょう。窓から差し込む日差しは、食卓を豊かに照らし出し、朝食のトーストが香ばしく焼かれる音や、コーヒーの湯気が立ち昇る情景が目に浮かびます。
この704号室の魅力は、ただ広いだけではありません。心地の良い風が通り抜けるこの場で、あなたの長い一日が終わった後、ゆったりとリラックスタイムを楽しむ姿が想像できます。大切な友人を呼んで、11.1帖のLDKでワインを傾けながら、笑い声が響き渡るパーティーを開くのも楽しそうです。
3.2帖の洋室は、プライベートなスペースとして、あなた自身の世界を築く場所。お気に入りの本を手に取り、静かな午後を過ごすための、理想的な隠れ家です。生花を飾れば、草花の香りが漂い、心がほっと穏やかに癒されることでしょう。
さらに、レアライズ浅草5 703の周辺には、歴史ある浅草の文化が息づいています。江戸情緒溢れる街並みを散策しながら、あなたの嗅覚を刺激する美味しい屋台の香りが漂い、つい立ち寄りたくなるような魅力があふれています。最寄りの東京メトロ銀座線・浅草駅へは徒歩12分。通勤やお出かけの際には、都市の中心地へアクセスする利便性を手に入れながら、ゆったりとした生活を謳歌することができます。
最先端の設備も、あなたのお住まいをさらに魅力的にします。オートロックや宅配ボックスが、忙しい日常を支え、あなたのライフスタイルをより快適にするでしょう。管理人が常駐することで、安心感を与えてくれます。
レアライズ浅草5 703は、ただの物件ではなく、あなたの人生の舞台となる場所です。ここでの生活は、まるで美術館を訪れるかのような、日々の中に輝く芸術的な瞬間を演出してくれることでしょう。さあ、この特別な場所で、新しいストーリーを始めてみませんか。あなたの生活は、間違いなく、魅力的な映画の一幕になるはずです。
バイブルスコア
バイブルスコア: 51.2
条件のいい物件です、引っ越しが2か月以内の場合は仮申し込みを検討すべき物件です。
このお部屋は、現在ご入居中のため空室情報はございません。ただし、将来的に募集が開始される際、バイブルスコアにおいて非常に高い評価が期待されます。特にご興味をお持ちの方は、今のうちにブックマークやお気に入りに登録していただくと、募集開始のお知らせをすぐに受け取ることができます。是非ともご検討くださいませ。
※バイブルスコア詳細はこちら
バイブルスコアとは独自のAI機械学習技術を利用した物件評価システムで、物件のおすすめ度を示します。最高得点は100点で、スコアが高いほど、よりおすすめの物件と評価されています。
写真
契約条件
| 賃料 | 予想金額:138,000〜158,000円程度 | 管理費 | 予想金額:16,000〜20,000円程度 |
| 礼金 | 非公開(アーカイブ) | 敷金 | 非公開(アーカイブ) |
| フリーレント | なし | 平米数 | 41.4㎡ |
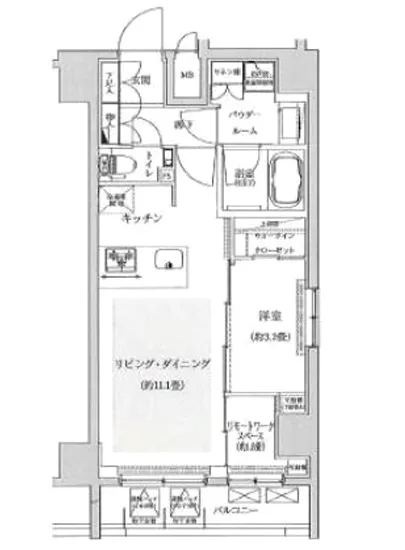
| 間取り | 1LDK | 大型収納 | WIC |
| 契約期間 | 2年 | 方角 | 北西 |
| 更新料 | 1ヶ月 | 契約形態 | 普通賃貸借契約 |
| 取引態様 | 媒介 | 内見状況 | 入居中 |
| 入居時期 | 入居中 | SOHO・事務所 | 不可 |
| ペット | ペット可 | 間取り内訳 | 洋:3.2 LDK:11.1 |
| キャンペーン情報・備考 | 本情報は賃料改定交渉の資料作成、収益物件の利回り試算、周辺エリアや最寄り駅の坪単価分析、次回募集開始時期の予測などにご活用いただけます。 | ||
※「どの不動産に頼めばいいのか分からない」「信頼できる営業マンの話を聞きたい」「一番親切な会社と契約したい」とお悩みの方におすすめなのが「高級賃貸バイブル」です。
高級賃貸バイブルは業界10年以上の熟練スタッフ群がお客様ファーストで対応します。
下記ボタンから、まずは無料でご相談下さい。
※内覧をご希望の際には、どうぞ物件のエントランス前にてお待ち合わせくださいませ。ご内覧後は、同じ場所でお別れとさせていただきます。お客様のご都合に合わせたスムーズなご案内を心がけておりますので、ご質問等がございましたら何なりとお申し付けください。 物件概要
| 物件名 |
| 築年月 |
|
|---|---|---|---|
| 所在地 | |||
| 交通 | |||
| 総戸数 |
| 総階数 |
|
| 構造 |
| ||
地図
物件までの道のりは、「拡大地図を表示」をクリックしてナビ機能をご利用ください。
部屋設備














建物設備

TVモニターホン

エレベーター

オートロック

バイク置場

宅配ボックス

敷地内ゴミ置場

管理人

駐車場平置き

駐輪場
レアライズ浅草5の現在募集中のお部屋
- No rooms found for this property.



















