
| 賃料 | 予想金額:93,000〜113,000円程度 | 管理費 | 予想金額:8,000〜12,000円程度 |
| 礼金/敷金 | 非公開(アーカイブ) | 平米数 | 25.62㎡ |
| 初期費用概算(参考) | 目安:77,700〜177,700 円 | みなし賃料(月額・参考) | 103,515〜123,515 円 |
| 備考 | 本ページは過去募集のアーカイブです。表示の金額は周辺相場・過去募集を踏まえた参考レンジであり、実際の契約金額・条件ではありません。 | ||
※上記みなし賃料(月額)は仲介手数料割引・無料&キャッシュバックを加味した高級賃貸バイブル限定の金額です。一般的なみなし賃料とは異なります。
【建物ページ】アーバンパーク浅草2の詳細・最新空室はこちら▶▶選ばれる理由
仲介手数料無料・キャンペーン情報(毎月15名様限定)
〇引っ越しお祝い金164800円プレゼント(キャッシュバック)
〇仲介手数料無料キャンペーン
アーバンパーク浅草2 601の口コミ・レビュー
「アーバンパーク浅草2 601」。この魅惑的な名前を持つお部屋は、あなたを待ちわびる静かな舞台裏のようです。ここには、都会の喧騒から一歩離れた、隠れ家のような安らぎがあります。601号室は、その名の通り、数百の物語を紡ぐ特別な場所です。西向きの窓からは、夕日が柔らかく差し込み、廊下を優しく照らします。あなたがここに住むことで、毎日が新たな映画のワンシーンとなることでしょう。
専有面積は25.62…「アーバンパーク浅草2 601」。この魅惑的な名前を持つお部屋は、あなたを待ちわびる静かな舞台裏のようです。ここには、都会の喧騒から一歩離れた、隠れ家のような安らぎがあります。601号室は、その名の通り、数百の物語を紡ぐ特別な場所です。西向きの窓からは、夕日が柔らかく差し込み、廊下を優しく照らします。あなたがここに住むことで、毎日が新たな映画のワンシーンとなることでしょう。
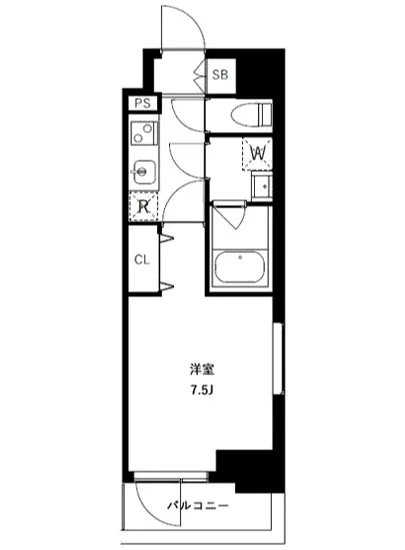
専有面積は25.62㎡。この広さの中に、まるで宝石のように輝く7.5帖の洋室があります。この空間は、あなたの感性を刺激するために生まれたかのようです。白い壁は、色とりどりのアート作品で飾ることができ、あなたの創造力を引き立てます。その床は、踏みしめるたびに心地よく、やわらかな感触をもたらし、まるで自然の中にいるかのような安堵感を与えてくれます。
このお部屋で過ごす日々は、まるで心に響く音楽のように流れます。朝の光が差し込むと、コーヒーの香ばしい香りが漂うキッチンから、あなたの大好きな朝食の準備が始まります。かすかなノスタルジックなメロディーが、窓の外から聴こえてくるのです。ここは、ただの住居ではなく、あなたのストーリーの舞台。シンクに映る自分を見つめながら、未来の夢を描くことができる場所です。
そして、アーバンパーク浅草2 601には、都市生活を彩るための魅力的な設備も整っています。エレベーターに乗ると、まるで空を舞うように軽やかな気持ちになり、オートロックの向こうには安全という名の信頼が待っています。また、宅配ボックスがあなたの暮らしをより便利にし、外出先でもほっと一息つける瞬間を提供してくれます。バイク置場や駐輪場も完備されており、アクティブなあなたのライフスタイルをサポートします。
浅草の街には、長い歴史と豊かな文化が息づいています。近くには伝統的な神社や、彩り豊かな市場が広がり、日常生活の中に芸術を感じることができます。季節ごとに変わる風物詩を楽しみながら、この場所で暮らすことは、あたかも映画の中の名シーンに生きるような特別な体験です。東京メトロ銀座線の浅草駅から徒歩14分、その距離感もまた、日々の冒険を刺激する要素となるでしょう。
「アーバンパーク浅草2 601」は、ただの住宅ではありません。あなたの日々の営みが織りなす壮麗な物語の舞台。その中で、心温まる瞬間と新たな発見を楽しむことができるのです。この特別な空間で、新たな生活を始める準備を整えましょう。あなたの物語が、ここから始まるのです。
専有面積は25.62…「アーバンパーク浅草2 601」。この魅惑的な名前を持つお部屋は、あなたを待ちわびる静かな舞台裏のようです。ここには、都会の喧騒から一歩離れた、隠れ家のような安らぎがあります。601号室は、その名の通り、数百の物語を紡ぐ特別な場所です。西向きの窓からは、夕日が柔らかく差し込み、廊下を優しく照らします。あなたがここに住むことで、毎日が新たな映画のワンシーンとなることでしょう。
専有面積は25.62㎡。この広さの中に、まるで宝石のように輝く7.5帖の洋室があります。この空間は、あなたの感性を刺激するために生まれたかのようです。白い壁は、色とりどりのアート作品で飾ることができ、あなたの創造力を引き立てます。その床は、踏みしめるたびに心地よく、やわらかな感触をもたらし、まるで自然の中にいるかのような安堵感を与えてくれます。
このお部屋で過ごす日々は、まるで心に響く音楽のように流れます。朝の光が差し込むと、コーヒーの香ばしい香りが漂うキッチンから、あなたの大好きな朝食の準備が始まります。かすかなノスタルジックなメロディーが、窓の外から聴こえてくるのです。ここは、ただの住居ではなく、あなたのストーリーの舞台。シンクに映る自分を見つめながら、未来の夢を描くことができる場所です。
そして、アーバンパーク浅草2 601には、都市生活を彩るための魅力的な設備も整っています。エレベーターに乗ると、まるで空を舞うように軽やかな気持ちになり、オートロックの向こうには安全という名の信頼が待っています。また、宅配ボックスがあなたの暮らしをより便利にし、外出先でもほっと一息つける瞬間を提供してくれます。バイク置場や駐輪場も完備されており、アクティブなあなたのライフスタイルをサポートします。
浅草の街には、長い歴史と豊かな文化が息づいています。近くには伝統的な神社や、彩り豊かな市場が広がり、日常生活の中に芸術を感じることができます。季節ごとに変わる風物詩を楽しみながら、この場所で暮らすことは、あたかも映画の中の名シーンに生きるような特別な体験です。東京メトロ銀座線の浅草駅から徒歩14分、その距離感もまた、日々の冒険を刺激する要素となるでしょう。
「アーバンパーク浅草2 601」は、ただの住宅ではありません。あなたの日々の営みが織りなす壮麗な物語の舞台。その中で、心温まる瞬間と新たな発見を楽しむことができるのです。この特別な空間で、新たな生活を始める準備を整えましょう。あなたの物語が、ここから始まるのです。
バイブルスコア
バイブルスコア: 49.4
条件のいい物件です、引っ越しが2か月以内の場合は仮申し込みを検討すべき物件です。
※バイブルスコア詳細はこちら
バイブルスコアとは独自のAI機械学習技術を利用した物件評価システムで、物件のおすすめ度を示します。最高得点は100点で、スコアが高いほど、よりおすすめの物件と評価されています。
写真
契約条件
| 賃料 | 予想金額:93,000〜113,000円程度 | 管理費 | 予想金額:8,000〜12,000円程度 |
| 礼金 | 非公開(アーカイブ) | 敷金 | 非公開(アーカイブ) |
| フリーレント | なし | 平米数 | 25.62㎡ |
| 間取り | 1K | 大型収納 | |
| 契約期間 | 2年 | 方角 | 西 |
| 更新料 | 1ヶ月 | 契約形態 | 普通賃貸借契約 |
| 取引態様 | 媒介 | 内見状況 | 入居中 |
| 入居時期 | 入居中 | SOHO・事務所 | |
| ペット | ペット可 | 間取り内訳 | 洋:7.5 |
| キャンペーン情報・備考 | 本情報は賃料改定交渉の資料作成、収益物件の利回り試算、周辺エリアや最寄り駅の坪単価分析、次回募集開始時期の予測などにご活用いただけます。 | ||
※「どの不動産に頼めばいいのか分からない」「信頼できる営業マンの話を聞きたい」「一番親切な会社と契約したい」とお悩みの方におすすめなのが「高級賃貸バイブル」です。
高級賃貸バイブルは業界10年以上の熟練スタッフ群がお客様ファーストで対応します。
下記ボタンから、まずは無料でご相談下さい。
※内覧をご希望の際には、どうぞ物件のエントランス前にてお待ち合わせくださいませ。ご内覧後は、同じ場所でお別れとさせていただきます。お客様のご都合に合わせたスムーズなご案内を心がけておりますので、ご質問等がございましたら何なりとお申し付けください。 物件概要
| 物件名 |
| 築年月 |
|
|---|---|---|---|
| 所在地 |
| ||
| 交通 | |||
| 総戸数 |
| 総階数 |
|
| 構造 |
| ||
地図
物件までの道のりは、「拡大地図を表示」をクリックしてナビ機能をご利用ください。
部屋設備












建物設備

TVモニターホン

エレベーター

オートロック

バイク置場

宅配ボックス

敷地内ゴミ置場

管理人

駐車場平置き

駐車場機械式

駐輪場
アーバンパーク浅草2の現在募集中のお部屋
- アーバンパーク浅草Ⅱ 1001 - 間取り: 2LDK - 賃料: 23.9万円













