
| 賃料 | 予想金額:158,000〜178,000円程度 | 管理費 | 予想金額:8,000〜12,000円程度 |
| 礼金/敷金 | 非公開(アーカイブ) | 平米数 | 35.47㎡ |
| 初期費用概算(参考) | 目安:404,700〜504,700 円 | みなし賃料(月額・参考) | 173,973〜193,973 円 |
| 備考 | 本ページは過去募集のアーカイブです。表示の金額は周辺相場・過去募集を踏まえた参考レンジであり、実際の契約金額・条件ではありません。 | ||
※上記みなし賃料(月額)は仲介手数料割引・無料&キャッシュバックを加味した高級賃貸バイブル限定の金額です。一般的なみなし賃料とは異なります。
【建物ページ】ウェルスクエア初台の詳細・最新空室はこちら▶▶選ばれる理由
仲介手数料無料・キャンペーン情報(毎月15名様限定)
〇引っ越しお祝い金184800円プレゼント(キャッシュバック)
〇仲介手数料無料キャンペーン
ウェルスクエア初台 105の口コミ・レビュー
ウェルスクエア初台 105。あなたを優雅な日常へと誘うこの住まいは、まるで静かな図書館の中の一頁から生まれたかのように、穏やかで、洗練された空間を提供します。東京都渋谷区初台1-40、南向きの窓からは、心地よい陽光が差し込み、日々の暮らしに温かな彩りを添えてくれます。
この物件は、まるで親しい友人が迎え入れてくれるかのように、心地よい雰囲気を醸し出しています。エレベーターでの上昇も、まるで空へと…ウェルスクエア初台 105。あなたを優雅な日常へと誘うこの住まいは、まるで静かな図書館の中の一頁から生まれたかのように、穏やかで、洗練された空間を提供します。東京都渋谷区初台1-40、南向きの窓からは、心地よい陽光が差し込み、日々の暮らしに温かな彩りを添えてくれます。
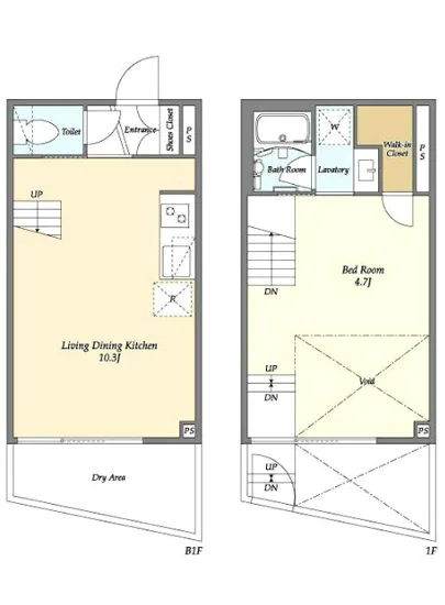
この物件は、まるで親しい友人が迎え入れてくれるかのように、心地よい雰囲気を醸し出しています。エレベーターでの上昇も、まるで空へと飛び立つような高揚感に包まれ、105号室に足を踏み入れるその瞬間、日常の喧騒から解放される感覚を味わえます。お部屋の中には、広々としたLDKが広がり、10.3帖の空間は、懐かしさと新しさが混在した不思議な感覚を与えます。この空間は、あなたの想像力をかき立て、木漏れ日の中で朝食を楽しむひとときや、友人との楽しいディナーを演出します。
素敵な生活の舞台を彩るのは、4.7帖の静かな洋室です。この部屋は、穏やかな夢の中へと誘う場所。薄明かりの中、あなたが好きな本を手にし、優雅なソファに身を沈めると、ひんやりしたページの感触と、紙の香りが心を満たしていくことでしょう。安らぎのひとときを過ごすための、隠れ家的な空間として、心の拠り所となります。
ウェルスクエア初台 105には、TVモニターホンやオートロックといった先進的な設備が備わっています。これらは、まるであなたを守る騎士のように、安心感をもたらします。宅配ボックスや駐輪場も完備しており、機能性と美しさの両立を果たしています。機械的な生活から一歩離れ、居心地の良さを追求したいあなたにぴったりです。
最寄り駅の京王線初台駅まで徒歩3分の距離は、まるで夢の中にいるかのような利便性を提供してくれます。駅の周辺には、歴史深い文化施設が点在し、アートや音楽の息吹が感じられる街並みは、あなたの感性を刺激します。散歩がてら、街の音楽やアートに触れ、心が豊かになる瞬間を堪能できることでしょう。
ウェルスクエア初台 105は、ただの住居ではなく、あなたの心を潤し、日常を特別なものに変える場です。この場所で、新たな物語を紡いでみませんか?あなたの毎日が、まるで映画のワンシーンのように映えることでしょう。心と空間が交わるこの素敵な物件で、人生を楽しむ扉を開いてみてください。
この物件は、まるで親しい友人が迎え入れてくれるかのように、心地よい雰囲気を醸し出しています。エレベーターでの上昇も、まるで空へと…ウェルスクエア初台 105。あなたを優雅な日常へと誘うこの住まいは、まるで静かな図書館の中の一頁から生まれたかのように、穏やかで、洗練された空間を提供します。東京都渋谷区初台1-40、南向きの窓からは、心地よい陽光が差し込み、日々の暮らしに温かな彩りを添えてくれます。
この物件は、まるで親しい友人が迎え入れてくれるかのように、心地よい雰囲気を醸し出しています。エレベーターでの上昇も、まるで空へと飛び立つような高揚感に包まれ、105号室に足を踏み入れるその瞬間、日常の喧騒から解放される感覚を味わえます。お部屋の中には、広々としたLDKが広がり、10.3帖の空間は、懐かしさと新しさが混在した不思議な感覚を与えます。この空間は、あなたの想像力をかき立て、木漏れ日の中で朝食を楽しむひとときや、友人との楽しいディナーを演出します。
素敵な生活の舞台を彩るのは、4.7帖の静かな洋室です。この部屋は、穏やかな夢の中へと誘う場所。薄明かりの中、あなたが好きな本を手にし、優雅なソファに身を沈めると、ひんやりしたページの感触と、紙の香りが心を満たしていくことでしょう。安らぎのひとときを過ごすための、隠れ家的な空間として、心の拠り所となります。
ウェルスクエア初台 105には、TVモニターホンやオートロックといった先進的な設備が備わっています。これらは、まるであなたを守る騎士のように、安心感をもたらします。宅配ボックスや駐輪場も完備しており、機能性と美しさの両立を果たしています。機械的な生活から一歩離れ、居心地の良さを追求したいあなたにぴったりです。
最寄り駅の京王線初台駅まで徒歩3分の距離は、まるで夢の中にいるかのような利便性を提供してくれます。駅の周辺には、歴史深い文化施設が点在し、アートや音楽の息吹が感じられる街並みは、あなたの感性を刺激します。散歩がてら、街の音楽やアートに触れ、心が豊かになる瞬間を堪能できることでしょう。
ウェルスクエア初台 105は、ただの住居ではなく、あなたの心を潤し、日常を特別なものに変える場です。この場所で、新たな物語を紡いでみませんか?あなたの毎日が、まるで映画のワンシーンのように映えることでしょう。心と空間が交わるこの素敵な物件で、人生を楽しむ扉を開いてみてください。
バイブルスコア
バイブルスコア: 34.7
平均的なスコアです。
※バイブルスコア詳細はこちら
バイブルスコアとは独自のAI機械学習技術を利用した物件評価システムで、物件のおすすめ度を示します。最高得点は100点で、スコアが高いほど、よりおすすめの物件と評価されています。
写真
契約条件
| 賃料 | 予想金額:158,000〜178,000円程度 | 管理費 | 予想金額:8,000〜12,000円程度 |
| 礼金 | 非公開(アーカイブ) | 敷金 | 非公開(アーカイブ) |
| フリーレント | なし | 平米数 | 35.47㎡ |
| 間取り | 1LDK | 大型収納 | WIC |
| 契約期間 | 2年 | 方角 | 南 |
| 更新料 | 1ヶ月 | 契約形態 | 普通賃貸借契約 |
| 取引態様 | 媒介 | 内見状況 | 入居中 |
| 入居時期 | 入居中 | SOHO・事務所 | 不可 |
| ペット | 不可 | 間取り内訳 | 洋:4.7 LDK:10.3 |
| キャンペーン情報・備考 | 本情報は賃料改定交渉の資料作成、収益物件の利回り試算、周辺エリアや最寄り駅の坪単価分析、次回募集開始時期の予測などにご活用いただけます。 | ||
※「どの不動産に頼めばいいのか分からない」「信頼できる営業マンの話を聞きたい」「一番親切な会社と契約したい」とお悩みの方におすすめなのが「高級賃貸バイブル」です。
高級賃貸バイブルは業界10年以上の熟練スタッフ群がお客様ファーストで対応します。
下記ボタンから、まずは無料でご相談下さい。
※内覧をご希望の際には、どうぞ物件のエントランス前にてお待ち合わせくださいませ。ご内覧後は、同じ場所でお別れとさせていただきます。お客様のご都合に合わせたスムーズなご案内を心がけておりますので、ご質問等がございましたら何なりとお申し付けください。 物件概要
| 物件名 |
| 築年月 |
|
|---|---|---|---|
| 所在地 | |||
| 交通 | |||
| 総戸数 |
| 総階数 |
|
| 構造 |
| ||
地図
物件までの道のりは、「拡大地図を表示」をクリックしてナビ機能をご利用ください。
部屋設備
















建物設備

TVモニターホン

エレベーター

オートロック

宅配ボックス

敷地内ゴミ置場

管理人

駐輪場
ウェルスクエア初台の現在募集中のお部屋
- ウェルスクエア 502 - 間取り: 1LDK - 賃料: 18.8万円





















