
| 賃料 | 予想金額:133,000〜153,000円程度 | 管理費 | 予想金額:13,000〜17,000円程度 |
| 礼金/敷金 | 非公開(アーカイブ) | 平米数 | 31.9㎡ |
| 初期費用概算(参考) | 目安:0〜-48,850 円 | みなし賃料(月額・参考) | 146,441〜166,441 円 |
| 備考 | 本ページは過去募集のアーカイブです。表示の金額は周辺相場・過去募集を踏まえた参考レンジであり、実際の契約金額・条件ではありません。 | ||
※上記みなし賃料(月額)は仲介手数料割引・無料&キャッシュバックを加味した高級賃貸バイブル限定の金額です。一般的なみなし賃料とは異なります。
【建物ページ】アーバンパーク亀戸の詳細・最新空室はこちら▶▶選ばれる理由
仲介手数料無料・キャンペーン情報(毎月15名様限定)
〇引っ越しお祝い金229600円プレゼント(キャッシュバック)
〇フリーレント1か月キャンペーン
〇仲介手数料無料キャンペーン
アーバンパーク亀戸 302の口コミ・レビュー
アーバンパーク亀戸 302という名の優美な住まいが、あなたを待ちわびています。この高級賃貸物件は、東京都江東区亀戸3-59-16に位置し、南東の陽光を存分に取り入れる設計が施されています。ここに住むことで、まるで人生の新たな映画の主人公になったかのような気持ちを抱くことでしょう。
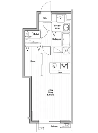
アーバンパーク亀戸 302は、31.9㎡という広さに1LDKの間取りを持ち、まるで小さな宝石のようにそのスペースを賢…アーバンパーク亀戸 302という名の優美な住まいが、あなたを待ちわびています。この高級賃貸物件は、東京都江東区亀戸3-59-16に位置し、南東の陽光を存分に取り入れる設計が施されています。ここに住むことで、まるで人生の新たな映画の主人公になったかのような気持ちを抱くことでしょう。
アーバンパーク亀戸 302は、31.9㎡という広さに1LDKの間取りを持ち、まるで小さな宝石のようにそのスペースを賢く使っています。LDKは、心地よい空気を感じさせる11.6帖の広さがあり、日差しが差し込むたびに温かい光があなたの日常を包み込みます。壁に寄りかかりながら、その広々とした空間で読書に耽ったり、美味しい料理を作る夢を描いたりすることができるのです。
この特別な場所は、まるで愛する人へ贈るプレゼントのように、素晴らしい設備が整っています。TVモニターホンで友人や家族を迎え入れ、エレベーターで軽やかに上層へ上がる瞬間、オートロックの安心感が心を和ませます。それはまるで、プライベートな世界への入口を持っているかのようです。宅配ボックスも完備され、忙しい毎日の中でも便利さが手の届くところにあります。
周囲の環境もまた、アーバンパーク亀戸 302の魅力を引き立てています。かつて賑わいを見せた亀戸の町並みには、歴史と文化が息づいており、自らがその一部であるかのように感じることができるでしょう。近くの公園では、春には桜が花開き、夏には虫の声が響き渡り、秋には紅葉の美しさに心奪われ、冬には静寂の中の美しい夜景が待っています。
生活の中では、目を閉じて耳を澄ませてみてください。都心の喧騒から少し離れたこの場所では、穏やかな風があなたの髪をそっと撫で、朝の清々しい香りが流れ込み、夕暮れ時には温かい夕日が心に染み入るのです。生活のあらゆる瞬間に、五感を刺激する喜びが詰まっている、この特別な住まいでの生活は、まるで愛の物語の一章のようです。
アーバンパーク亀戸 302は、あなたにとっての特別な場所となることでしょう。この邸宅で新たなスタートを切り、心豊かに暮らす日々を一緒に紡いでいきませんか。ここでの生活は、特別な瞬間を大切にすることを教えてくれるでしょう。あなたの人生に新たな彩りを加える、最高の舞台がここにあります。
アーバンパーク亀戸 302は、31.9㎡という広さに1LDKの間取りを持ち、まるで小さな宝石のようにそのスペースを賢…アーバンパーク亀戸 302という名の優美な住まいが、あなたを待ちわびています。この高級賃貸物件は、東京都江東区亀戸3-59-16に位置し、南東の陽光を存分に取り入れる設計が施されています。ここに住むことで、まるで人生の新たな映画の主人公になったかのような気持ちを抱くことでしょう。
アーバンパーク亀戸 302は、31.9㎡という広さに1LDKの間取りを持ち、まるで小さな宝石のようにそのスペースを賢く使っています。LDKは、心地よい空気を感じさせる11.6帖の広さがあり、日差しが差し込むたびに温かい光があなたの日常を包み込みます。壁に寄りかかりながら、その広々とした空間で読書に耽ったり、美味しい料理を作る夢を描いたりすることができるのです。
この特別な場所は、まるで愛する人へ贈るプレゼントのように、素晴らしい設備が整っています。TVモニターホンで友人や家族を迎え入れ、エレベーターで軽やかに上層へ上がる瞬間、オートロックの安心感が心を和ませます。それはまるで、プライベートな世界への入口を持っているかのようです。宅配ボックスも完備され、忙しい毎日の中でも便利さが手の届くところにあります。
周囲の環境もまた、アーバンパーク亀戸 302の魅力を引き立てています。かつて賑わいを見せた亀戸の町並みには、歴史と文化が息づいており、自らがその一部であるかのように感じることができるでしょう。近くの公園では、春には桜が花開き、夏には虫の声が響き渡り、秋には紅葉の美しさに心奪われ、冬には静寂の中の美しい夜景が待っています。
生活の中では、目を閉じて耳を澄ませてみてください。都心の喧騒から少し離れたこの場所では、穏やかな風があなたの髪をそっと撫で、朝の清々しい香りが流れ込み、夕暮れ時には温かい夕日が心に染み入るのです。生活のあらゆる瞬間に、五感を刺激する喜びが詰まっている、この特別な住まいでの生活は、まるで愛の物語の一章のようです。
アーバンパーク亀戸 302は、あなたにとっての特別な場所となることでしょう。この邸宅で新たなスタートを切り、心豊かに暮らす日々を一緒に紡いでいきませんか。ここでの生活は、特別な瞬間を大切にすることを教えてくれるでしょう。あなたの人生に新たな彩りを加える、最高の舞台がここにあります。
バイブルスコア
バイブルスコア: 49.5
条件のいい物件です、引っ越しが2か月以内の場合は仮申し込みを検討すべき物件です。
※バイブルスコア詳細はこちら
バイブルスコアとは独自のAI機械学習技術を利用した物件評価システムで、物件のおすすめ度を示します。最高得点は100点で、スコアが高いほど、よりおすすめの物件と評価されています。
写真
現在写真が登録されていません契約条件
| 賃料 | 予想金額:133,000〜153,000円程度 | 管理費 | 予想金額:13,000〜17,000円程度 |
| 礼金 | 非公開(アーカイブ) | 敷金 | 非公開(アーカイブ) |
| フリーレント | 1ヶ月 | 平米数 | 31.9㎡ |
| 間取り | 1LDK | 大型収納 | |
| 契約期間 | 2年 | 方角 | 南東 |
| 更新料 | 1ヶ月 | 契約形態 | 普通賃貸借契約 |
| 取引態様 | 媒介 | 内見状況 | 入居中 |
| 入居時期 | 入居中 | SOHO・事務所 | |
| ペット | ペット可 | 間取り内訳 | 洋 LDK |
| キャンペーン情報・備考 | 本情報は賃料改定交渉の資料作成、収益物件の利回り試算、周辺エリアや最寄り駅の坪単価分析、次回募集開始時期の予測などにご活用いただけます。 | ||
※「どの不動産に頼めばいいのか分からない」「信頼できる営業マンの話を聞きたい」「一番親切な会社と契約したい」とお悩みの方におすすめなのが「高級賃貸バイブル」です。
高級賃貸バイブルは業界10年以上の熟練スタッフ群がお客様ファーストで対応します。
下記ボタンから、まずは無料でご相談下さい。
※内覧をご希望の際には、どうぞ物件のエントランス前にてお待ち合わせくださいませ。ご内覧後は、同じ場所でお別れとさせていただきます。お客様のご都合に合わせたスムーズなご案内を心がけておりますので、ご質問等がございましたら何なりとお申し付けください。 物件概要
| 物件名 |
| 築年月 |
|
|---|---|---|---|
| 所在地 | |||
| 交通 | |||
| 総戸数 |
| 総階数 |
|
| 構造 |
| ||
地図
物件までの道のりは、「拡大地図を表示」をクリックしてナビ機能をご利用ください。
部屋設備

















建物設備

TVモニターホン

エレベーター

オートロック

宅配ボックス

敷地内ゴミ置場

管理人

駐輪場
アーバンパーク亀戸の現在募集中のお部屋
- No rooms found for this property.
