
| 賃料 | 予想金額:295,000〜315,000円程度 | 管理費 | 予想金額:18,000〜22,000円程度 |
| 礼金/敷金 | 非公開(アーカイブ) | 平米数 | 51.41㎡ |
| 初期費用概算(参考) | 目安:0〜69,500 円 | みなし賃料(月額・参考) | 315,406〜335,406 円 |
| 備考 | 本ページは過去募集のアーカイブです。表示の金額は周辺相場・過去募集を踏まえた参考レンジであり、実際の契約金額・条件ではありません。 | ||
※上記みなし賃料(月額)は仲介手数料割引・無料&キャッシュバックを加味した高級賃貸バイブル限定の金額です。一般的なみなし賃料とは異なります。
【建物ページ】リテラス浅草橋イーストの詳細・最新空室はこちら▶▶選ばれる理由
仲介手数料無料・キャンペーン情報(毎月15名様限定)
〇引っ越しお祝い金488000円プレゼント(キャッシュバック)
〇フリーレント1か月キャンペーン
〇仲介手数料無料キャンペーン
リテラス浅草橋イースト 1402の口コミ・レビュー
リテラス浅草橋イースト 1402。高層の夢の中に息づくこの場所は、東京の歴史と現代が美しく交錯する舞台であり、あなたを迎え入れる準備が整っています。この美しいマンションは、どこか特別な魔法をかけたかのように、あなたの生活を映画のワンシーンに変えてくれることでしょう。
まず、1402号室の扉を開けた瞬間、心に響くのは、コンクリートの冷たさではなく、温かな光のシャワーです。南東を向いた大きな窓から差…リテラス浅草橋イースト 1402。高層の夢の中に息づくこの場所は、東京の歴史と現代が美しく交錯する舞台であり、あなたを迎え入れる準備が整っています。この美しいマンションは、どこか特別な魔法をかけたかのように、あなたの生活を映画のワンシーンに変えてくれることでしょう。
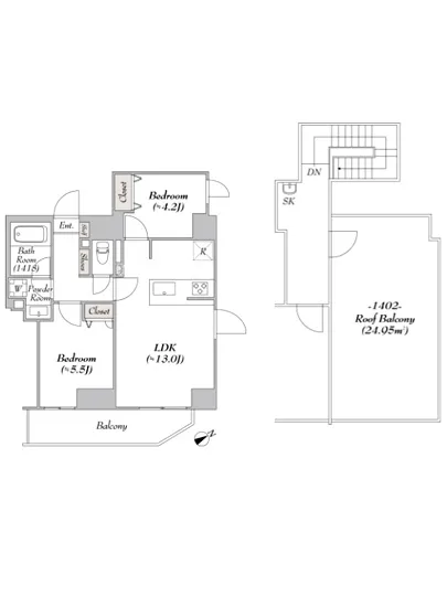
まず、1402号室の扉を開けた瞬間、心に響くのは、コンクリートの冷たさではなく、温かな光のシャワーです。南東を向いた大きな窓から差し込む光は、静寂の中で優雅に舞う陽の粒子として、部屋を包み込みます。リテラス浅草橋イーストの51.41㎡というスペースは、あなた自身の物語を描くキャンバスです。LDKは13帖の広さを持ち、ここには、新しい友人との笑い声や、家族の温もりが響くことでしょう。
この家はただの住まいではありません。五感を刺激する場所です。まず、LDKの空間には、あなたの喜びや感情を受け止めるように、心地良い香りが漂います。アロマキャンドルの香りや、焼き立てのパンの芳しい香りが、日常のストレスを忘れさせてくれます。窓から聴こえるのは、街の喧騒ではなく、穏やかな風のささやき。ゆったりとした午後、あなたはその心地よさに身を委ねることができるのです。
さらに、リテラス浅草橋イーストの間取りには、5.5帖と4.2帖の洋室があり、私たちの生活に必要な余白を与えてくれます。それぞれの部屋は、あなたのパーソナルな空間として、静寂と平和のオアシスを提供します。心の中に描く夢や、未来への希望を、あなただけの色で染めてください。
東京の歴史的な地に位置するこのマンションは、周囲の文化と芸術と親密に結びついています。都営地下鉄浅草線の浅草橋駅から徒歩5分の距離は、あなたを都会の中心へと導き、素材としての脈動を感じさせるでしょう。伝統的な文化とモダンな感性が交差する場所で、あなたの生活はまるで美しいアート作品のように、時と共に変化し続けるのです。
安心感をもたらすオートロックや宅配ボックス、そして管理人の存在が、あなたの日常をより豊かに彩ります。リテラス浅草橋イーストは、ただの住まいではなく、あなた自身の物語が織りなされる場所であり、必要なすべての心地よさを提供するパートナーです。平置き駐車場や駐輪場も完備されていることで、日常の利便性も忘れません。
さあ、リテラス浅草橋イースト 1402で新しい物語を紡いでみませんか?あなたの心に寄り添い、静かに喜びを見守るこの場所は、あなたの生活を彩る小さな宝石のように、永遠に輝き続けることでしょう。まるで、日々の暮らしが素敵な映画の一場面であるかのように、あなたの人生を美しく演出してくれるのです。
まず、1402号室の扉を開けた瞬間、心に響くのは、コンクリートの冷たさではなく、温かな光のシャワーです。南東を向いた大きな窓から差…リテラス浅草橋イースト 1402。高層の夢の中に息づくこの場所は、東京の歴史と現代が美しく交錯する舞台であり、あなたを迎え入れる準備が整っています。この美しいマンションは、どこか特別な魔法をかけたかのように、あなたの生活を映画のワンシーンに変えてくれることでしょう。
まず、1402号室の扉を開けた瞬間、心に響くのは、コンクリートの冷たさではなく、温かな光のシャワーです。南東を向いた大きな窓から差し込む光は、静寂の中で優雅に舞う陽の粒子として、部屋を包み込みます。リテラス浅草橋イーストの51.41㎡というスペースは、あなた自身の物語を描くキャンバスです。LDKは13帖の広さを持ち、ここには、新しい友人との笑い声や、家族の温もりが響くことでしょう。
この家はただの住まいではありません。五感を刺激する場所です。まず、LDKの空間には、あなたの喜びや感情を受け止めるように、心地良い香りが漂います。アロマキャンドルの香りや、焼き立てのパンの芳しい香りが、日常のストレスを忘れさせてくれます。窓から聴こえるのは、街の喧騒ではなく、穏やかな風のささやき。ゆったりとした午後、あなたはその心地よさに身を委ねることができるのです。
さらに、リテラス浅草橋イーストの間取りには、5.5帖と4.2帖の洋室があり、私たちの生活に必要な余白を与えてくれます。それぞれの部屋は、あなたのパーソナルな空間として、静寂と平和のオアシスを提供します。心の中に描く夢や、未来への希望を、あなただけの色で染めてください。
東京の歴史的な地に位置するこのマンションは、周囲の文化と芸術と親密に結びついています。都営地下鉄浅草線の浅草橋駅から徒歩5分の距離は、あなたを都会の中心へと導き、素材としての脈動を感じさせるでしょう。伝統的な文化とモダンな感性が交差する場所で、あなたの生活はまるで美しいアート作品のように、時と共に変化し続けるのです。
安心感をもたらすオートロックや宅配ボックス、そして管理人の存在が、あなたの日常をより豊かに彩ります。リテラス浅草橋イーストは、ただの住まいではなく、あなた自身の物語が織りなされる場所であり、必要なすべての心地よさを提供するパートナーです。平置き駐車場や駐輪場も完備されていることで、日常の利便性も忘れません。
さあ、リテラス浅草橋イースト 1402で新しい物語を紡いでみませんか?あなたの心に寄り添い、静かに喜びを見守るこの場所は、あなたの生活を彩る小さな宝石のように、永遠に輝き続けることでしょう。まるで、日々の暮らしが素敵な映画の一場面であるかのように、あなたの人生を美しく演出してくれるのです。
バイブルスコア
バイブルスコア: 16
高級な物件でない場合は割高な物件です。。
※バイブルスコア詳細はこちら
バイブルスコアとは独自のAI機械学習技術を利用した物件評価システムで、物件のおすすめ度を示します。最高得点は100点で、スコアが高いほど、よりおすすめの物件と評価されています。
写真
契約条件
| 賃料 | 予想金額:295,000〜315,000円程度 | 管理費 | 予想金額:18,000〜22,000円程度 |
| 礼金 | 非公開(アーカイブ) | 敷金 | 非公開(アーカイブ) |
| フリーレント | 1ヶ月 | 平米数 | 51.41㎡ |
| 間取り | 2LDK | 大型収納 | |
| 契約期間 | 2年 | 方角 | 南東 |
| 更新料 | 1ヶ月 | 契約形態 | 普通賃貸借契約 |
| 取引態様 | 媒介 | 内見状況 | 入居中 |
| 入居時期 | 入居中 | SOHO・事務所 | |
| ペット | 間取り内訳 | 洋:5.5 洋:4.2 LDK:13 | |
| キャンペーン情報・備考 | 本情報は賃料改定交渉の資料作成、収益物件の利回り試算、周辺エリアや最寄り駅の坪単価分析、次回募集開始時期の予測などにご活用いただけます。 | ||
※「どの不動産に頼めばいいのか分からない」「信頼できる営業マンの話を聞きたい」「一番親切な会社と契約したい」とお悩みの方におすすめなのが「高級賃貸バイブル」です。
高級賃貸バイブルは業界10年以上の熟練スタッフ群がお客様ファーストで対応します。
下記ボタンから、まずは無料でご相談下さい。
※内覧をご希望の際には、どうぞ物件のエントランス前にてお待ち合わせくださいませ。ご内覧後は、同じ場所でお別れとさせていただきます。お客様のご都合に合わせたスムーズなご案内を心がけておりますので、ご質問等がございましたら何なりとお申し付けください。 物件概要
| 物件名 |
| 築年月 |
|
|---|---|---|---|
| 所在地 | |||
| 交通 | |||
| 総戸数 |
| 総階数 |
|
| 構造 |
| ||
地図
物件までの道のりは、「拡大地図を表示」をクリックしてナビ機能をご利用ください。
部屋設備















建物設備

TVモニターホン

エレベーター

オートロック

宅配ボックス

敷地内ゴミ置場

管理人

駐車場平置き

駐輪場
リテラス浅草橋イーストの現在募集中のお部屋
- リテラス浅草橋イースト 1401 - 間取り: 2LDK - 賃料: 29.9万円
- リテラス浅草橋イースト 201 - 間取り: 2LDK - 賃料: 21.2万円
- リテラス浅草橋イースト 802 - 間取り: 1LDK - 賃料: 15.9万円
- リテラス浅草橋イースト 703 - 間取り: 1LDK - 賃料: 15.8万円























