
| 賃料 | 予想金額:81,000〜101,000円程度 | 管理費 | 予想金額:10,000〜14,000円程度 |
| 礼金/敷金 | 非公開(アーカイブ) | 平米数 | 26.4㎡ |
| 初期費用概算(参考) | 目安:0〜3,850 円 | みなし賃料(月額・参考) | 92,539〜112,539 円 |
| 備考 | 本ページは過去募集のアーカイブです。表示の金額は周辺相場・過去募集を踏まえた参考レンジであり、実際の契約金額・条件ではありません。 | ||
※上記みなし賃料(月額)は仲介手数料割引・無料&キャッシュバックを加味した高級賃貸バイブル限定の金額です。一般的なみなし賃料とは異なります。
【建物ページ】セジョリ墨田イースト3の詳細・最新空室はこちら▶▶選ばれる理由
仲介手数料無料・キャンペーン情報(毎月15名様限定)
〇引っ越しお祝い金146400円プレゼント(キャッシュバック)
〇フリーレント1か月キャンペーン
〇仲介手数料無料キャンペーン
セジョリ墨田イースト3 404の口コミ・レビュー
セジョリ墨田イースト3 404。この素晴らしい物件は、まるで現代のアートギャラリーのように、空間が息をひそめてあなたを待っています。東京都墨田区東向島3-9-6の地に佇むこのマンションは、ただの住まいではなく、心の拠り所、日常の舞台です。
やわらかな西の光が、404号室の窓を通り抜け、優雅に舞い込んできます。その明るい光は、まるであなたの暮らしに新たな色彩を添えるかのようです。専有面積26.4㎡…セジョリ墨田イースト3 404。この素晴らしい物件は、まるで現代のアートギャラリーのように、空間が息をひそめてあなたを待っています。東京都墨田区東向島3-9-6の地に佇むこのマンションは、ただの住まいではなく、心の拠り所、日常の舞台です。
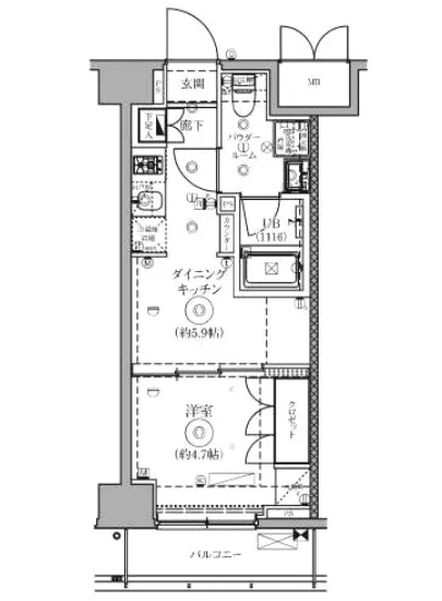
やわらかな西の光が、404号室の窓を通り抜け、優雅に舞い込んできます。その明るい光は、まるであなたの暮らしに新たな色彩を添えるかのようです。専有面積26.4㎡のコンパクトながらも、あなたの心を満たす温もりある空間が広がっています。ここでは、4.7帖の洋室と5.9帖のダイニングキッチンが、一体となってシンフォニーを奏でます。
想像してみてください。朝、目覚めた瞬間、柔らかな光がまぶたを優しく撫で、あなたはその光の中で朝食の香りを感じるのです。ダイニングキッチンで静かに焼き上がるトースト。バターが溶けて、香ばしい匂いが立ち上る。そのとき、あなたの心もふくらみ、今日の予定に思いを巡らせます。セジョリ墨田イースト3 404の空間は、そんな日常の幸せを実感させてくれる場所です。
エレベーターを利用して地上へ出ると、周囲の静けさと街の活気が織りなす絶妙なハーモニーを感じられます。最寄りの東向島駅までわずか9分の距離。街の喧騒を離れ、穏やかな時間が流れるこの区域は、まるで都会のオアシスのよう。周囲には歴史ある文化が息づいており、隣接する鹿島神社では四季折々のお祭りが行われ、地域の人々の温かな交流が生まれています。セジョリ墨田イースト3 404は、ただの住まいでなく、そのような歴史や文化の中に溶け込むことで、あなたの人生により深い色を添えてくれることでしょう。
夕暮れ時、あなたが窓から眺める景色は、一日の終わりを告げる美しいグラデーション。街灯がゆっくりと灯り始め、静けさが心を包み込みます。オートロックやTVモニターホンが備わった安心感の中、あなたは思わず深呼吸し、今日という一日を振り返ります。ここでの生活は、まさに映画のワンシーンのように、心に残る余韻を残します。
また、セジョリ墨田イースト3 404の魅力は、デザイナーズマンションとしての美しいデザインにもあります。洗練された内装は、感性を刺激し、日常を特別なものに変えてくれることでしょう。宅配ボックスや駐輪場、駐車場など、充実した設備が揃っており、快適な生活をサポートします。
セジョリ墨田イースト3 404。その名を呼ぶたびに、この場所があなたに語りかけるかのような感覚に包まれます。新たな生活の舞台として、あなたのストーリーがここで始まることを、心より楽しみにしています。
やわらかな西の光が、404号室の窓を通り抜け、優雅に舞い込んできます。その明るい光は、まるであなたの暮らしに新たな色彩を添えるかのようです。専有面積26.4㎡…セジョリ墨田イースト3 404。この素晴らしい物件は、まるで現代のアートギャラリーのように、空間が息をひそめてあなたを待っています。東京都墨田区東向島3-9-6の地に佇むこのマンションは、ただの住まいではなく、心の拠り所、日常の舞台です。
やわらかな西の光が、404号室の窓を通り抜け、優雅に舞い込んできます。その明るい光は、まるであなたの暮らしに新たな色彩を添えるかのようです。専有面積26.4㎡のコンパクトながらも、あなたの心を満たす温もりある空間が広がっています。ここでは、4.7帖の洋室と5.9帖のダイニングキッチンが、一体となってシンフォニーを奏でます。
想像してみてください。朝、目覚めた瞬間、柔らかな光がまぶたを優しく撫で、あなたはその光の中で朝食の香りを感じるのです。ダイニングキッチンで静かに焼き上がるトースト。バターが溶けて、香ばしい匂いが立ち上る。そのとき、あなたの心もふくらみ、今日の予定に思いを巡らせます。セジョリ墨田イースト3 404の空間は、そんな日常の幸せを実感させてくれる場所です。
エレベーターを利用して地上へ出ると、周囲の静けさと街の活気が織りなす絶妙なハーモニーを感じられます。最寄りの東向島駅までわずか9分の距離。街の喧騒を離れ、穏やかな時間が流れるこの区域は、まるで都会のオアシスのよう。周囲には歴史ある文化が息づいており、隣接する鹿島神社では四季折々のお祭りが行われ、地域の人々の温かな交流が生まれています。セジョリ墨田イースト3 404は、ただの住まいでなく、そのような歴史や文化の中に溶け込むことで、あなたの人生により深い色を添えてくれることでしょう。
夕暮れ時、あなたが窓から眺める景色は、一日の終わりを告げる美しいグラデーション。街灯がゆっくりと灯り始め、静けさが心を包み込みます。オートロックやTVモニターホンが備わった安心感の中、あなたは思わず深呼吸し、今日という一日を振り返ります。ここでの生活は、まさに映画のワンシーンのように、心に残る余韻を残します。
また、セジョリ墨田イースト3 404の魅力は、デザイナーズマンションとしての美しいデザインにもあります。洗練された内装は、感性を刺激し、日常を特別なものに変えてくれることでしょう。宅配ボックスや駐輪場、駐車場など、充実した設備が揃っており、快適な生活をサポートします。
セジョリ墨田イースト3 404。その名を呼ぶたびに、この場所があなたに語りかけるかのような感覚に包まれます。新たな生活の舞台として、あなたのストーリーがここで始まることを、心より楽しみにしています。
バイブルスコア
バイブルスコア: 87.7
レア物件です、すぐ仮押さえしましょう!
このお部屋は、現在ご入居中のため空室情報はございません。ただし、将来的に募集が開始される際、バイブルスコアにおいて非常に高い評価が期待されます。特にご興味をお持ちの方は、今のうちにブックマークやお気に入りに登録していただくと、募集開始のお知らせをすぐに受け取ることができます。是非ともご検討くださいませ。
※バイブルスコア詳細はこちら
バイブルスコアとは独自のAI機械学習技術を利用した物件評価システムで、物件のおすすめ度を示します。最高得点は100点で、スコアが高いほど、よりおすすめの物件と評価されています。
写真
契約条件
| 賃料 | 予想金額:81,000〜101,000円程度 | 管理費 | 予想金額:10,000〜14,000円程度 |
| 礼金 | 非公開(アーカイブ) | 敷金 | 非公開(アーカイブ) |
| フリーレント | 1ヶ月 | 平米数 | 26.4㎡ |
| 間取り | 1DK | 大型収納 | |
| 契約期間 | 2年 | 方角 | 西 |
| 更新料 | 1ヶ月 | 契約形態 | 普通賃貸借契約 |
| 取引態様 | 媒介 | 内見状況 | 入居中 |
| 入居時期 | 入居中 | SOHO・事務所 | |
| ペット | ペット可 | 間取り内訳 | 洋:4.7 DK:5.9 |
| キャンペーン情報・備考 | 本情報は賃料改定交渉の資料作成、収益物件の利回り試算、周辺エリアや最寄り駅の坪単価分析、次回募集開始時期の予測などにご活用いただけます。 | ||
※「どの不動産に頼めばいいのか分からない」「信頼できる営業マンの話を聞きたい」「一番親切な会社と契約したい」とお悩みの方におすすめなのが「高級賃貸バイブル」です。
高級賃貸バイブルは業界10年以上の熟練スタッフ群がお客様ファーストで対応します。
下記ボタンから、まずは無料でご相談下さい。
※内覧をご希望の際には、どうぞ物件のエントランス前にてお待ち合わせくださいませ。ご内覧後は、同じ場所でお別れとさせていただきます。お客様のご都合に合わせたスムーズなご案内を心がけておりますので、ご質問等がございましたら何なりとお申し付けください。 物件概要
地図
物件までの道のりは、「拡大地図を表示」をクリックしてナビ機能をご利用ください。
部屋設備














建物設備

TVモニターホン

エレベーター

オートロック

バイク置場

宅配ボックス

敷地内ゴミ置場

管理人

駐車場平置き

駐車場機械式

駐輪場
セジョリ墨田イースト3の現在募集中のお部屋
- No rooms found for this property.























