
| 賃料 | 予想金額:115,000〜135,000円程度 | 管理費 | 予想金額:8,000〜12,000円程度 |
| 礼金/敷金 | 非公開(アーカイブ) | 平米数 | 25.86㎡ |
| 初期費用概算(参考) | 目安:0〜22,500 円 | みなし賃料(月額・参考) | 121,823〜141,823 円 |
| 備考 | 本ページは過去募集のアーカイブです。表示の金額は周辺相場・過去募集を踏まえた参考レンジであり、実際の契約金額・条件ではありません。 | ||
※上記みなし賃料(月額)は仲介手数料割引・無料&キャッシュバックを加味した高級賃貸バイブル限定の金額です。一般的なみなし賃料とは異なります。
【建物ページ】シーフォルム田端の詳細・最新空室はこちら▶▶選ばれる理由
仲介手数料無料・キャンペーン情報(毎月15名様限定)
〇引っ越しお祝い金250000円プレゼント(キャッシュバック)
〇仲介手数料無料キャンペーン
シーフォルム田端 1304の口コミ・レビュー
シーフォルム田端 1304、ここにあなたの新しい物語が始まります。南西の窓から差し込む柔らかな日差しは、まるで新たな一日への優しい招待状。あなたがこの居住空間に足を踏み入れるたび、心地よい風があなたを包み込み、まるで自然と一体になったかのような感覚を呼び起こします。
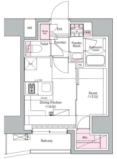
このシーフォルム田端 1304は、わずか25.86㎡の中に、無限の可能性が秘められています。3.1帖の洋室は、まるであなたのプライ…シーフォルム田端 1304、ここにあなたの新しい物語が始まります。南西の窓から差し込む柔らかな日差しは、まるで新たな一日への優しい招待状。あなたがこの居住空間に足を踏み入れるたび、心地よい風があなたを包み込み、まるで自然と一体になったかのような感覚を呼び起こします。
このシーフォルム田端 1304は、わずか25.86㎡の中に、無限の可能性が秘められています。3.1帖の洋室は、まるであなたのプライベートな隠れ家。そこには、あなたの大切な思い出や夢が詰まった本や、心を落ち着けるための一杯のコーヒーが似合います。朝日が差し込むその瞬間、あなたは自分自身を再発見するのです。
ダイニングキッチンは6帖の広さを持ち、あなたの料理の腕前を存分に発揮する舞台です。新鮮な食材の香りが漂い、鍋が熱される音が、まるでオーケストラのように心を躍らせます。ふわりと広がる香ばしい匂いに誘われて、友人や家族が集い、笑い声が響き渡る様子を想像してみてください。その瞬間、あなたの生活はまるで映画のワンシーンのように盛り上がります。
また、シーフォルム田端 1304は、現代的な設備も完備しています。エレベーターやオートロック、宅配ボックスなど、日常生活をより便利にしてくれる心強い味方たち。まるであなたの生活をサポートする親友のように、安心感を与えてくれます。
周辺には、豊かな自然や歴史的な背景が息づいています。北区の魅力的な文化に触れることができ、地元の人々と交流することで、心豊かな生活が待っています。散歩道を歩けば、季節ごとに変わる景色が楽しめ、四季折々の花や木々があなたに微笑みかけます。音楽が漂うお洒落なカフェや、アートギャラリーも近くにあり、文化的な刺激を受けることができます。
このシーフォルム田端 1304は、ただの住まいではなく、あなたの人生を彩る舞台です。日常のストーリーを紡ぎ、夢を叶えていく場所。ここでの生活は、あなたの感性を豊かにし、心温まる瞬間を与えてくれることでしょう。どうぞ、この特別な場所で、新たな章を始めてみませんか。あなたの毎日が映画のワンシーンとなり、かけがえのない思い出を生み出す舞台になることを、私は心から願っています。
このシーフォルム田端 1304は、わずか25.86㎡の中に、無限の可能性が秘められています。3.1帖の洋室は、まるであなたのプライ…シーフォルム田端 1304、ここにあなたの新しい物語が始まります。南西の窓から差し込む柔らかな日差しは、まるで新たな一日への優しい招待状。あなたがこの居住空間に足を踏み入れるたび、心地よい風があなたを包み込み、まるで自然と一体になったかのような感覚を呼び起こします。
このシーフォルム田端 1304は、わずか25.86㎡の中に、無限の可能性が秘められています。3.1帖の洋室は、まるであなたのプライベートな隠れ家。そこには、あなたの大切な思い出や夢が詰まった本や、心を落ち着けるための一杯のコーヒーが似合います。朝日が差し込むその瞬間、あなたは自分自身を再発見するのです。
ダイニングキッチンは6帖の広さを持ち、あなたの料理の腕前を存分に発揮する舞台です。新鮮な食材の香りが漂い、鍋が熱される音が、まるでオーケストラのように心を躍らせます。ふわりと広がる香ばしい匂いに誘われて、友人や家族が集い、笑い声が響き渡る様子を想像してみてください。その瞬間、あなたの生活はまるで映画のワンシーンのように盛り上がります。
また、シーフォルム田端 1304は、現代的な設備も完備しています。エレベーターやオートロック、宅配ボックスなど、日常生活をより便利にしてくれる心強い味方たち。まるであなたの生活をサポートする親友のように、安心感を与えてくれます。
周辺には、豊かな自然や歴史的な背景が息づいています。北区の魅力的な文化に触れることができ、地元の人々と交流することで、心豊かな生活が待っています。散歩道を歩けば、季節ごとに変わる景色が楽しめ、四季折々の花や木々があなたに微笑みかけます。音楽が漂うお洒落なカフェや、アートギャラリーも近くにあり、文化的な刺激を受けることができます。
このシーフォルム田端 1304は、ただの住まいではなく、あなたの人生を彩る舞台です。日常のストーリーを紡ぎ、夢を叶えていく場所。ここでの生活は、あなたの感性を豊かにし、心温まる瞬間を与えてくれることでしょう。どうぞ、この特別な場所で、新たな章を始めてみませんか。あなたの毎日が映画のワンシーンとなり、かけがえのない思い出を生み出す舞台になることを、私は心から願っています。
バイブルスコア
バイブルスコア: 48.6
条件のいい物件です、引っ越しが2か月以内の場合は仮申し込みを検討すべき物件です。
※バイブルスコア詳細はこちら
バイブルスコアとは独自のAI機械学習技術を利用した物件評価システムで、物件のおすすめ度を示します。最高得点は100点で、スコアが高いほど、よりおすすめの物件と評価されています。
写真
契約条件
| 賃料 | 予想金額:115,000〜135,000円程度 | 管理費 | 予想金額:8,000〜12,000円程度 |
| 礼金 | 非公開(アーカイブ) | 敷金 | 非公開(アーカイブ) |
| フリーレント | なし | 平米数 | 25.86㎡ |
| 間取り | 1DK | 大型収納 | WIC |
| 契約期間 | 2年 | 方角 | 南西 |
| 更新料 | 1ヶ月 | 契約形態 | 普通賃貸借契約 |
| 取引態様 | 媒介 | 内見状況 | 入居中 |
| 入居時期 | 入居中 | SOHO・事務所 | |
| ペット | ペット可 | 間取り内訳 | 洋:3.1 DK:6 |
| キャンペーン情報・備考 | 本情報は賃料改定交渉の資料作成、収益物件の利回り試算、周辺エリアや最寄り駅の坪単価分析、次回募集開始時期の予測などにご活用いただけます。 | ||
※「どの不動産に頼めばいいのか分からない」「信頼できる営業マンの話を聞きたい」「一番親切な会社と契約したい」とお悩みの方におすすめなのが「高級賃貸バイブル」です。
高級賃貸バイブルは業界10年以上の熟練スタッフ群がお客様ファーストで対応します。
下記ボタンから、まずは無料でご相談下さい。
※内覧をご希望の際には、どうぞ物件のエントランス前にてお待ち合わせくださいませ。ご内覧後は、同じ場所でお別れとさせていただきます。お客様のご都合に合わせたスムーズなご案内を心がけておりますので、ご質問等がございましたら何なりとお申し付けください。 物件概要
| 物件名 |
| 築年月 |
|
|---|---|---|---|
| 所在地 | |||
| 交通 | |||
| 総戸数 |
| 総階数 |
|
| 構造 |
| ||
地図
物件までの道のりは、「拡大地図を表示」をクリックしてナビ機能をご利用ください。
部屋設備















建物設備

TVモニターホン

エレベーター

オートロック

宅配ボックス

敷地内ゴミ置場

管理人

駐輪場
シーフォルム田端の現在募集中のお部屋
- No rooms found for this property.








