
| 賃料 | 予想金額:95,000〜115,000円程度 | 管理費 | 予想金額:8,000〜12,000円程度 |
| 礼金/敷金 | 非公開(アーカイブ) | 平米数 | 25.95㎡ |
| 初期費用概算(参考) | 目安:0〜-14,000 円 | みなし賃料(月額・参考) | 103,667〜123,667 円 |
| 備考 | 本ページは過去募集のアーカイブです。表示の金額は周辺相場・過去募集を踏まえた参考レンジであり、実際の契約金額・条件ではありません。 | ||
※上記みなし賃料(月額)は仲介手数料割引・無料&キャッシュバックを加味した高級賃貸バイブル限定の金額です。一般的なみなし賃料とは異なります。
【建物ページ】スタイリオ池上WeLLの詳細・最新空室はこちら▶▶選ばれる理由
仲介手数料無料・キャンペーン情報(毎月15名様限定)
〇引っ越しお祝い金168000円プレゼント(キャッシュバック)
〇フリーレント3か月キャンペーン
〇仲介手数料無料キャンペーン
スタイリオ池上WeLL 203の口コミ・レビュー
スタイリオ池上WeLL 203は、居住空間の中に豊かな人生を感じさせてくれる、まさに生活のオアシスです。25.9…スタイリオ池上WeLL 203。まるで優雅な絵画のように、東京都大田区池上7-22-18に静かに佇むこの高級賃貸物件は、あなたを新たな生活の舞台へと誘います。南向きの窓からは、朝日が優しく降り注ぎ、日々の始まりを華やかに彩ります。そんな心地良い光の中、あなたの新しい日常は始まります。
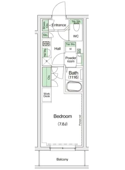
スタイリオ池上WeLL 203は、居住空間の中に豊かな人生を感じさせてくれる、まさに生活のオアシスです。25.95㎡の専有面積は、まるで一枚のキャンバスのように、あなたの想像力で自由にデザインできます。洗練された1Kの間取りは、7.8帖の洋室があなたのプライベートな空間となり、そこから見える風景は、まるで映画のワンシーンのように心を打つことでしょう。
あなたがふと窓を開けると、柔らかな風が流れ込み、周辺の草花の香りが心を浸します。池上駅から徒歩7分の距離は、まるで時間を贈るように、穏やかな日常へのアクセスを提供してくれます。そして、静けさを保ちながらも、都市の喧騒から少し離れたこの場所は、心の安らぎを求めるあなたにぴったりです。
スタイリオ池上WeLL 203のエレベーターでの上昇は、日常の忙しさを忘れさせるゆったりとした時間。オートロックや管理人の存在は、まるであなたを優しく見守る存在のよう。バイク置場や駐輪場の完備は、冒険心をくすぐり、あなたの行動範囲を広げてくれます。また、宅配ボックスや敷地内ゴミ置場の便利さは、日々の暮らしにさらなる快適さをプラスします。
ここでは、生活がただのルーチンではなく、アートであり、日々の実験でもあります。お気に入りの本を手に取り、静かな昼下がりにカフェの香りを漂わせながら香ばしいコーヒーを淹れる。その瞬間、あなたは自分だけのストーリーを紡ぐ作家となります。この物件があなたに与えるのは、ただの住まいではなく、心を豊かにする舞台なのです。
歴史ある池上の地は、長い間人々の物語を見守ってきました。神社や文化財、随所に根付く古の風情は、あなたの心をさらに潤わせ、日常の中に新たな発見をもたらすことでしょう。スタイリオ池上WeLL 203での生活は、単なる住まいを超え、心が豊かになる瞬間を提供してくれます。
どうか、スタイリオ池上WeLL 203で新たな物語を紡ぎ出し、人生の美しさに触れてみてはいかがでしょうか。そこにあるのは、呼吸するように自然に流れる日々。そして、あなたが選ぶ選択肢の数々は、毎日を特別なものにしてくれるのです。さあ、この洗練された空間で、あなたの新しい生活を始めましょう。
バイブルスコア
バイブルスコア: 59.5
条件のいい物件です、引っ越しが2か月以内の場合は仮申し込みを検討すべき物件です。
このお部屋は、現在ご入居中のため空室情報はございません。ただし、将来的に募集が開始される際、バイブルスコアにおいて非常に高い評価が期待されます。特にご興味をお持ちの方は、今のうちにブックマークやお気に入りに登録していただくと、募集開始のお知らせをすぐに受け取ることができます。是非ともご検討くださいませ。
※バイブルスコア詳細はこちら
バイブルスコアとは独自のAI機械学習技術を利用した物件評価システムで、物件のおすすめ度を示します。最高得点は100点で、スコアが高いほど、よりおすすめの物件と評価されています。
写真
現在写真が登録されていません契約条件
| 賃料 | 予想金額:95,000〜115,000円程度 | 管理費 | 予想金額:8,000〜12,000円程度 |
| 礼金 | 非公開(アーカイブ) | 敷金 | 非公開(アーカイブ) |
| フリーレント | 3ヶ月 | 平米数 | 25.95㎡ |
| 間取り | 1K | 大型収納 | |
| 契約期間 | 2年 | 方角 | 南 |
| 更新料 | 1ヶ月 | 契約形態 | 普通賃貸借契約 |
| 取引態様 | 媒介 | 内見状況 | 入居中 |
| 入居時期 | 入居中 | SOHO・事務所 | |
| ペット | 間取り内訳 | 洋:7.8 | |
| キャンペーン情報・備考 | 本情報は賃料改定交渉の資料作成、収益物件の利回り試算、周辺エリアや最寄り駅の坪単価分析、次回募集開始時期の予測などにご活用いただけます。 | ||
※「どの不動産に頼めばいいのか分からない」「信頼できる営業マンの話を聞きたい」「一番親切な会社と契約したい」とお悩みの方におすすめなのが「高級賃貸バイブル」です。
高級賃貸バイブルは業界10年以上の熟練スタッフ群がお客様ファーストで対応します。
下記ボタンから、まずは無料でご相談下さい。
※内覧をご希望の際には、どうぞ物件のエントランス前にてお待ち合わせくださいませ。ご内覧後は、同じ場所でお別れとさせていただきます。お客様のご都合に合わせたスムーズなご案内を心がけておりますので、ご質問等がございましたら何なりとお申し付けください。 物件概要
地図
物件までの道のりは、「拡大地図を表示」をクリックしてナビ機能をご利用ください。
部屋設備














建物設備

TVモニターホン

エレベーター

オートロック

バイク置場

宅配ボックス

敷地内ゴミ置場

管理人

駐輪場
スタイリオ池上WeLLの現在募集中のお部屋
- No rooms found for this property.
