
| 賃料 | 予想金額:98,000〜118,000円程度 | 管理費 | 予想金額:8,000〜12,000円程度 |
| 礼金/敷金 | 非公開(アーカイブ) | 平米数 | 25.95㎡ |
| 初期費用概算(参考) | 目安:0〜-17,300 円 | みなし賃料(月額・参考) | 106,598〜126,598 円 |
| 備考 | 本ページは過去募集のアーカイブです。表示の金額は周辺相場・過去募集を踏まえた参考レンジであり、実際の契約金額・条件ではありません。 | ||
※上記みなし賃料(月額)は仲介手数料割引・無料&キャッシュバックを加味した高級賃貸バイブル限定の金額です。一般的なみなし賃料とは異なります。
【建物ページ】スタイリオ池上WeLLの詳細・最新空室はこちら▶▶選ばれる理由
仲介手数料無料・キャンペーン情報(毎月15名様限定)
〇引っ越しお祝い金172800円プレゼント(キャッシュバック)
〇フリーレント3か月キャンペーン
〇仲介手数料無料キャンペーン
スタイリオ池上WeLL 403の口コミ・レビュー
この住まいに足を踏み入れると、洋室7.8帖の広さにまず驚かされることでしょう。どこか優雅さを感じさせるその空間は、あなたの自由な発想とクリエイティブな毎日を存分に受け入れ、ゆったりとした時間の流れをもたらしてくれるはずです。静まった夜、窓を開けると、心地よい風が穏やかなリズムで室内を撫で、星々の輝きがあなたの思考をさらなる高みへと導いていくのです。
スタイリオ池上WeLL 403には、現代の便利さと安全を重視した設備が整っています。オートロック機能は、まるで貴族の城のようにあなたのプライバシーを守り、エレベーターは優雅に上下を移動させ、日々の疲れを癒してくれるでしょう。また、宅配ボックスや敷地内ゴミ置場は、忙しいあなたの生活をサポートする頼もしい存在であり、時間を有効に使うための友となるのです。
周辺には、東京急行電鉄東急池上線の池上駅が徒歩7分という距離にあり、都市の喧騒もさることながら、穏やかな時間が流れる地域です。池上本門寺の歴史や、さまざまな文化施設は、あなたの心に更なる感動を与えてくれることでしょう。伝統的な風情と新しい息吹が交錯するこの街で、あなたは生活のアートを作り上げることができます。
想像してみてください。朝の光が差し込む中、心地よい香りが漂うコーヒーを淹れ、ゆったりとした洋室7.8帖で読書を楽しむ時間。静かな午後には、窓を開けて心地よい風を感じながら、アートや音楽に触れて自分自身を見つける心の旅に出かけます。そして、夜には友人を招いて、笑い声が響く素敵なディナーを楽しむ。スタイリオ池上WeLL 403は、そんな真の意味での「生活」という名の舞台を提供してくれます。
いかがでしょうか、スタイリオ池上WeLL 403。この物件は単なる居住空間を超え、あなたの人生の物語を共に紡ぐ、特別な存在なのです。時間が流れる中で、この場所があなたにとっての「家」となり、あなたの心の一部となるでしょう。さあ、新たな生活の扉を開く準備をしませんか。あなたの物語は、ここから始まります。
バイブルスコア
バイブルスコア: 56.5
条件のいい物件です、引っ越しが2か月以内の場合は仮申し込みを検討すべき物件です。
このお部屋は、現在ご入居中のため空室情報はございません。ただし、将来的に募集が開始される際、バイブルスコアにおいて非常に高い評価が期待されます。特にご興味をお持ちの方は、今のうちにブックマークやお気に入りに登録していただくと、募集開始のお知らせをすぐに受け取ることができます。是非ともご検討くださいませ。
※バイブルスコア詳細はこちら
バイブルスコアとは独自のAI機械学習技術を利用した物件評価システムで、物件のおすすめ度を示します。最高得点は100点で、スコアが高いほど、よりおすすめの物件と評価されています。
写真
現在写真が登録されていません契約条件
| 賃料 | 予想金額:98,000〜118,000円程度 | 管理費 | 予想金額:8,000〜12,000円程度 |
| 礼金 | 非公開(アーカイブ) | 敷金 | 非公開(アーカイブ) |
| フリーレント | 3ヶ月 | 平米数 | 25.95㎡ |
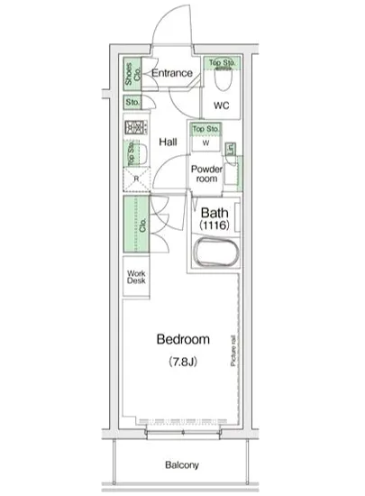
| 間取り | 1K | 大型収納 | |
| 契約期間 | 2年 | 方角 | 南 |
| 更新料 | 1ヶ月 | 契約形態 | 普通賃貸借契約 |
| 取引態様 | 媒介 | 内見状況 | 入居中 |
| 入居時期 | 入居中 | SOHO・事務所 | |
| ペット | 間取り内訳 | 洋:7.8 | |
| キャンペーン情報・備考 | 本情報は賃料改定交渉の資料作成、収益物件の利回り試算、周辺エリアや最寄り駅の坪単価分析、次回募集開始時期の予測などにご活用いただけます。 | ||
※「どの不動産に頼めばいいのか分からない」「信頼できる営業マンの話を聞きたい」「一番親切な会社と契約したい」とお悩みの方におすすめなのが「高級賃貸バイブル」です。
高級賃貸バイブルは業界10年以上の熟練スタッフ群がお客様ファーストで対応します。
下記ボタンから、まずは無料でご相談下さい。
※内覧をご希望の際には、どうぞ物件のエントランス前にてお待ち合わせくださいませ。ご内覧後は、同じ場所でお別れとさせていただきます。お客様のご都合に合わせたスムーズなご案内を心がけておりますので、ご質問等がございましたら何なりとお申し付けください。 物件概要
地図
物件までの道のりは、「拡大地図を表示」をクリックしてナビ機能をご利用ください。
部屋設備














建物設備

TVモニターホン

エレベーター

オートロック

バイク置場

宅配ボックス

敷地内ゴミ置場

管理人

駐輪場
スタイリオ池上WeLLの現在募集中のお部屋
- No rooms found for this property.
