
| 賃料 | 予想金額:95,000〜115,000円程度 | 管理費 | 予想金額:8,000〜12,000円程度 |
| 礼金/敷金 | 非公開(アーカイブ) | 平米数 | 22.63㎡ |
| 初期費用概算(参考) | 目安:79,950〜179,950 円 | みなし賃料(月額・参考) | 106,009〜126,009 円 |
| 備考 | 本ページは過去募集のアーカイブです。表示の金額は周辺相場・過去募集を踏まえた参考レンジであり、実際の契約金額・条件ではありません。 | ||
※上記みなし賃料(月額)は仲介手数料割引・無料&キャッシュバックを加味した高級賃貸バイブル限定の金額です。一般的なみなし賃料とは異なります。
【建物ページ】リヴシティ初台の詳細・最新空室はこちら▶▶選ばれる理由
仲介手数料無料・キャンペーン情報(毎月15名様限定)
〇引っ越しお祝い金168800円プレゼント(キャッシュバック)
〇仲介手数料無料キャンペーン
リヴシティ初台 303の口コミ・レビュー
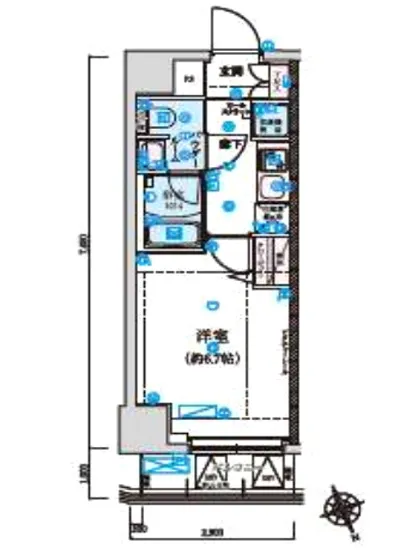
リヴシティ初台 303には、22.63㎡の広さの中に、洗練されたデザインと機能性が見事に調和しています。6.7帖の…リヴシティ初台 303。まるで優雅な芸術品のように、あなたを迎え入れるこの特別な空間は、渋谷の中心で静謐な時を刻む贅沢な避難所です。北東に広がる窓からは、朝日の柔らかな光が差し込み、何気ない日常を特別な瞬間に変えてくれます。この場所は、まさにあなたの新しい物語の舞台となるでしょう。
リヴシティ初台 303には、22.63㎡の広さの中に、洗練されたデザインと機能性が見事に調和しています。6.7帖の洋室は、心地よい温もりを感じる木の香りに包まれ、まるで自然の中で目を覚ますような心地よさがあります。朝食の香ばしい匂いが漂うキッチン(2帖)で、一杯の香り高いコーヒーを淹れながら、外の景色を楽しむ時間は、まさに至福のひとときです。
この物件に住むことで、あなたの毎日が映画のワンシーンに変わることでしょう。映画の中で登場人物が大切な人とともに過ごす、幸せな瞬間を思い描いてみてください。リヴシティ初台 303は、まるでその舞台装置です。エレベーターを降りて街に出れば、高級なカフェや洗練されたレストラン、心を打つアートギャラリーが周囲に広がり、まるで自分が美しいストーリーの主人公になったかのような気分に浸ることができるのです。
オートロックやTVモニターホンなどのセキュリティが充実しているため、安心して日々の生活を楽しむことができます。宅配ボックスの存在は、忙しい現代人の強い味方です。大切な荷物が無事に届くと、まるで贈り物を待ちわびる子供のように心が躍ります。夕暮れ時には、リヴシティ初台 303のバルコニーから見える街の灯りが、まるで星空のように瞬いて、あなたの心を癒してくれるでしょう。
また、初台駅までのわずか6分の距離は、まるで軽やかな舞踏のように、あなたをあらゆる場所へと導いてくれます。渋谷の賑わいと、近隣の文化的な魅力が融合し、心豊かな生活を支えています。アートが息づく街並みや、歴史ある建物に囲まれたこのエリアは、都会の喧騒から少し離れた特別な場所で、あなた自身を見つけるための完璧な舞台です。
リヴシティ初台 303は単なる住まいではなく、あなたの人生に寄り添うパートナー。毎日の生活を、心に残る特別な瞬間で満たしてくれることでしょう。その小さな空間の中に広がる無限の可能性を感じ、あなた自身のストーリーを紡いでください。この美しい空間が、あなたの人生に輝きを添えることは間違いありません。リヴシティ初台 303で、新たな始まりの扉を開けてみませんか。
バイブルスコア
バイブルスコア: 54.3
条件のいい物件です、引っ越しが2か月以内の場合は仮申し込みを検討すべき物件です。
このお部屋は、現在ご入居中のため空室情報はございません。ただし、将来的に募集が開始される際、バイブルスコアにおいて非常に高い評価が期待されます。特にご興味をお持ちの方は、今のうちにブックマークやお気に入りに登録していただくと、募集開始のお知らせをすぐに受け取ることができます。是非ともご検討くださいませ。
※バイブルスコア詳細はこちら
バイブルスコアとは独自のAI機械学習技術を利用した物件評価システムで、物件のおすすめ度を示します。最高得点は100点で、スコアが高いほど、よりおすすめの物件と評価されています。
写真
契約条件
| 賃料 | 予想金額:95,000〜115,000円程度 | 管理費 | 予想金額:8,000〜12,000円程度 |
| 礼金 | 非公開(アーカイブ) | 敷金 | 非公開(アーカイブ) |
| フリーレント | なし | 平米数 | 22.63㎡ |
| 間取り | 1K | 大型収納 | |
| 契約期間 | 2年 | 方角 | 北東 |
| 更新料 | 1ヶ月 | 契約形態 | 普通賃貸借契約 |
| 取引態様 | 媒介 | 内見状況 | 入居中 |
| 入居時期 | 入居中 | SOHO・事務所 | |
| ペット | ペット可 | 間取り内訳 | 洋:6.7 K:2 |
| キャンペーン情報・備考 | 本情報は賃料改定交渉の資料作成、収益物件の利回り試算、周辺エリアや最寄り駅の坪単価分析、次回募集開始時期の予測などにご活用いただけます。 | ||
※「どの不動産に頼めばいいのか分からない」「信頼できる営業マンの話を聞きたい」「一番親切な会社と契約したい」とお悩みの方におすすめなのが「高級賃貸バイブル」です。
高級賃貸バイブルは業界10年以上の熟練スタッフ群がお客様ファーストで対応します。
下記ボタンから、まずは無料でご相談下さい。
※内覧をご希望の際には、どうぞ物件のエントランス前にてお待ち合わせくださいませ。ご内覧後は、同じ場所でお別れとさせていただきます。お客様のご都合に合わせたスムーズなご案内を心がけておりますので、ご質問等がございましたら何なりとお申し付けください。 物件概要
| 物件名 |
| 築年月 |
|
|---|---|---|---|
| 所在地 | |||
| 交通 | |||
| 総戸数 |
| 総階数 |
|
| 構造 |
| ||
地図
物件までの道のりは、「拡大地図を表示」をクリックしてナビ機能をご利用ください。
部屋設備













建物設備

TVモニターホン

エレベーター

オートロック

バイク置場

宅配ボックス

敷地内ゴミ置場

管理人

駐輪場
リヴシティ初台の現在募集中のお部屋
- リヴシティ初台 6階 33.89㎡ - 間取り: 1LDK - 賃料: 17.8万円
- リヴシティ初台 8階 33.89㎡ - 間取り: 1LDK - 賃料: 17.9万円
- リヴシティ初台 4階 33.89㎡ - 間取り: 1LDK - 賃料: 16.3万円


















