
| 賃料 | 予想金額:159,000〜179,000円程度 | 管理費 | 予想金額:13,000〜17,000円程度 |
| 礼金/敷金 | 非公開(アーカイブ) | 平米数 | 35.98㎡ |
| 初期費用概算(参考) | 目安:56,320〜156,320 円 | みなし賃料(月額・参考) | 176,215〜196,215 円 |
| 備考 | 本ページは過去募集のアーカイブです。表示の金額は周辺相場・過去募集を踏まえた参考レンジであり、実際の契約金額・条件ではありません。 | ||
※上記みなし賃料(月額)は仲介手数料割引・無料&キャッシュバックを加味した高級賃貸バイブル限定の金額です。一般的なみなし賃料とは異なります。
【建物ページ】シーズンフラッツ新御徒町の詳細・最新空室はこちら▶▶選ばれる理由
仲介手数料無料・キャンペーン情報(毎月15名様限定)
〇引っ越しお祝い金206180円プレゼント(キャッシュバック)
〇フリーレント1か月キャンペーン
〇仲介手数料無料キャンペーン
シーズンフラッツ新御徒町 503の口コミ・レビュー
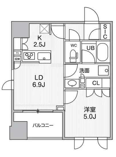
シーズンフラッツ新御徒町 503。私、シーズンフラッツ新御徒町 503は、東京都台東区台東にひっそりと佇む一つの宝石のような存在です。都会の喧騒からわずか1分の距離にある新御徒町駅からの道程は、まるであなたを私の元へと誘い込むように、心地よい風を伴いながら続いています。私が抱える35.98㎡のスペースは、アートが息づくこの街にぴったりの、洗練された1LDKの間取りを誇っています。
私の心臓部であ…シーズンフラッツ新御徒町 503。私、シーズンフラッツ新御徒町 503は、東京都台東区台東にひっそりと佇む一つの宝石のような存在です。都会の喧騒からわずか1分の距離にある新御徒町駅からの道程は、まるであなたを私の元へと誘い込むように、心地よい風を伴いながら続いています。私が抱える35.98㎡のスペースは、アートが息づくこの街にぴったりの、洗練された1LDKの間取りを誇っています。
私の心臓部であるリビングは、広々とした6.9㎡を持ち、南向きの窓からは日差しが優しく差し込み、暖かい光と共にあなたの日常を照らします。この場所では、朝のコーヒーの香りが漂い、その香ばしさに包まれながら、思わず心が躍る瞬間が訪れるでしょう。バルコニーからは、都会の喧噪を忘れさせてくれる静寂な風景が広がり、周囲の景観はまるで映画のワンシーンのように、あなたを迎え入れます。
私には、豊かな感性を持つ新しい住人を待ちわびるその瞬間が爽快な快感となります。夜には、街の灯りが遠くにキラキラと輝き、あなたの生活を美しく彩ります。お友達を招いた特別なディナーでは、私のキッチン(2.5㎡)で料理の魔法をかけ、フレッシュな食材が奏でる音楽に体を委ねてください。
そして、私の中には便利な設備が詰まっています。あなたの生活を守るオートロックシステムや、日々のストレスを少しでも軽減する宅配ボックス、そして駐輪場や駐車場も完備しており、あらゆるニーズに応じた空間をご提供します。これらはすべて、あなたが私の懐に安らぎを見出すための小道具に過ぎません。
シーズンフラッツ新御徒町 503は、ただの住まいではなく、歴史と文化が交錯するこの街の一部であり、また新たな物語の舞台ともなります。周囲にはアートギャラリーや洒落たカフェが点在し、古き良き日本の匂いと新しい風が交じり合う、まるで時間旅行をしているかのような感覚さえ抱かせてくれます。
あなたが私の住人となったその日から、日常が特別な瞬間に変わるでしょう。心の底から満たされる感覚、視覚や聴覚、嗅覚、触覚、味覚を刺激する刺激的なストーリーが、ここから始まります。シーズンフラッツ新御徒町 503で、新しい生活の幕開けを感じてみてはいかがでしょうか。あなたの物語が、ここで待っています。
私の心臓部であ…シーズンフラッツ新御徒町 503。私、シーズンフラッツ新御徒町 503は、東京都台東区台東にひっそりと佇む一つの宝石のような存在です。都会の喧騒からわずか1分の距離にある新御徒町駅からの道程は、まるであなたを私の元へと誘い込むように、心地よい風を伴いながら続いています。私が抱える35.98㎡のスペースは、アートが息づくこの街にぴったりの、洗練された1LDKの間取りを誇っています。
私の心臓部であるリビングは、広々とした6.9㎡を持ち、南向きの窓からは日差しが優しく差し込み、暖かい光と共にあなたの日常を照らします。この場所では、朝のコーヒーの香りが漂い、その香ばしさに包まれながら、思わず心が躍る瞬間が訪れるでしょう。バルコニーからは、都会の喧噪を忘れさせてくれる静寂な風景が広がり、周囲の景観はまるで映画のワンシーンのように、あなたを迎え入れます。
私には、豊かな感性を持つ新しい住人を待ちわびるその瞬間が爽快な快感となります。夜には、街の灯りが遠くにキラキラと輝き、あなたの生活を美しく彩ります。お友達を招いた特別なディナーでは、私のキッチン(2.5㎡)で料理の魔法をかけ、フレッシュな食材が奏でる音楽に体を委ねてください。
そして、私の中には便利な設備が詰まっています。あなたの生活を守るオートロックシステムや、日々のストレスを少しでも軽減する宅配ボックス、そして駐輪場や駐車場も完備しており、あらゆるニーズに応じた空間をご提供します。これらはすべて、あなたが私の懐に安らぎを見出すための小道具に過ぎません。
シーズンフラッツ新御徒町 503は、ただの住まいではなく、歴史と文化が交錯するこの街の一部であり、また新たな物語の舞台ともなります。周囲にはアートギャラリーや洒落たカフェが点在し、古き良き日本の匂いと新しい風が交じり合う、まるで時間旅行をしているかのような感覚さえ抱かせてくれます。
あなたが私の住人となったその日から、日常が特別な瞬間に変わるでしょう。心の底から満たされる感覚、視覚や聴覚、嗅覚、触覚、味覚を刺激する刺激的なストーリーが、ここから始まります。シーズンフラッツ新御徒町 503で、新しい生活の幕開けを感じてみてはいかがでしょうか。あなたの物語が、ここで待っています。
バイブルスコア
バイブルスコア: 31.0
平均的なスコアです。
※バイブルスコア詳細はこちら
バイブルスコアとは独自のAI機械学習技術を利用した物件評価システムで、物件のおすすめ度を示します。最高得点は100点で、スコアが高いほど、よりおすすめの物件と評価されています。
写真
契約条件
| 賃料 | 予想金額:159,000〜179,000円程度 | 管理費 | 予想金額:13,000〜17,000円程度 |
| 礼金 | 非公開(アーカイブ) | 敷金 | 非公開(アーカイブ) |
| フリーレント | 1.0ヶ月 | 平米数 | 35.98㎡ |
| 間取り | 1LDK | 大型収納 | SIC |
| 契約期間 |
| 方角 | 南 |
| 更新料 | 契約形態 | 普通賃貸借契約 | |
| 取引態様 | 媒介 | 内見状況 | 入居中 |
| 入居時期 | 入居中 | SOHO・事務所 | |
| ペット | 間取り内訳 | 洋:5 LD:6.9 K:2.5 | |
| キャンペーン情報・備考 | 本情報は賃料改定交渉の資料作成、収益物件の利回り試算、周辺エリアや最寄り駅の坪単価分析、次回募集開始時期の予測などにご活用いただけます。 | ||
※「どの不動産に頼めばいいのか分からない」「信頼できる営業マンの話を聞きたい」「一番親切な会社と契約したい」とお悩みの方におすすめなのが「高級賃貸バイブル」です。
高級賃貸バイブルは業界10年以上の熟練スタッフ群がお客様ファーストで対応します。
下記ボタンから、まずは無料でご相談下さい。
※内覧をご希望の際には、どうぞ物件のエントランス前にてお待ち合わせくださいませ。ご内覧後は、同じ場所でお別れとさせていただきます。お客様のご都合に合わせたスムーズなご案内を心がけておりますので、ご質問等がございましたら何なりとお申し付けください。 物件概要
| 物件名 |
| 築年月 |
|
|---|---|---|---|
| 所在地 | |||
| 交通 | |||
| 総戸数 |
| 総階数 |
|
| 構造 |
| ||
地図
物件までの道のりは、「拡大地図を表示」をクリックしてナビ機能をご利用ください。
部屋設備














建物設備

TVモニターホン

エレベーター

オートロック

バイク置場

宅配ボックス

敷地内ゴミ置場

管理人

駐車場平置き

駐車場機械式

駐輪場
シーズンフラッツ新御徒町の現在募集中のお部屋
- シーズンフラッツ新御徒町 401 - 間取り: 1LDK+SIC - 賃料: 17.4万円
- シーズンフラッツ新御徒町 506 - 間取り: 2LDK+SIC - 賃料: 24.3万円


























