
| 賃料 | 予想金額:233,000〜253,000円程度 | 管理費 | 予想金額:13,000〜17,000円程度 |
| 礼金/敷金 | 非公開(アーカイブ) | 平米数 | 50.85㎡ |
| 初期費用概算(参考) | 目安:914,500〜1,014,500 円 | みなし賃料(月額・参考) | 263,031〜283,031 円 |
| 備考 | 本ページは過去募集のアーカイブです。表示の金額は周辺相場・過去募集を踏まえた参考レンジであり、実際の契約金額・条件ではありません。 | ||
※上記みなし賃料(月額)は仲介手数料割引・無料&キャッシュバックを加味した高級賃貸バイブル限定の金額です。一般的なみなし賃料とは異なります。
【建物ページ】プラウドフラット東日本橋の詳細・最新空室はこちら▶▶選ばれる理由
仲介手数料無料・キャンペーン情報(毎月15名様限定)
〇仲介手数料割引キャンペーン
プラウドフラット東日本橋 903の口コミ・レビュー
プラウドフラット東日本橋 903は、まるで舞台の中心に立つ主演のように存在感を放つ物件です。この特別な住まいは、東京都中央区東日本橋に佇む、南と西に開かれた明るく温かな空間を展開しています。心が躍るような場所、ここでの生活は日々のストーリーを紡ぐ情緒豊かな舞台となることでしょう。
まず、903号室の扉を開けると、優雅な香りが漂ってきます。それは、あなたの新しい生活の幕開けを告げる香料のよう。5帖…プラウドフラット東日本橋 903は、まるで舞台の中心に立つ主演のように存在感を放つ物件です。この特別な住まいは、東京都中央区東日本橋に佇む、南と西に開かれた明るく温かな空間を展開しています。心が躍るような場所、ここでの生活は日々のストーリーを紡ぐ情緒豊かな舞台となることでしょう。
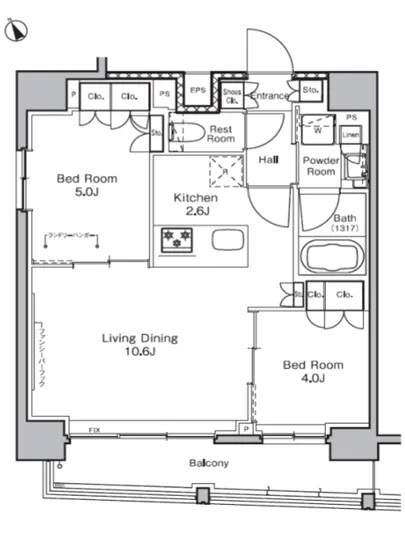
まず、903号室の扉を開けると、優雅な香りが漂ってきます。それは、あなたの新しい生活の幕開けを告げる香料のよう。5帖の洋室と4帖の洋室は、まるで穏やかな海の波が寄せるように、心をほんのりと癒やしてくれます。LDK10.6帖の広がりは、友人を招いて笑顔があふれる食事会や、一日を振り返りながらの落ち着きのあるひとときにぴったりです。どの部屋にも優しい陽射しが注ぎ、あなたを温かく受け入れてくれるのです。
調理の場となるK2.6帖では、食材が踊るように切られ、香ばしい香りが鼻をくすぐります。新鮮な野菜や肉が鍋の中でくつくつと音を立て、あなたの五感を刺激し、心も身体も満たしてくれることでしょう。この空間が、あなたのクリエイティビティを刺激し、天才シェフのような気持ちにさせてくれます。
また、プラウドフラット東日本橋 903には、生活の利便性を追求した設備が整っています。オートロックや宅配ボックスは、まるであなたの生活を守る強固な盾のよう。エレベーターや駐車場は、日常のちょっとした移動をスムーズにし、まるで心地良い風に乗るような感覚を与えてくれます。管理人が常駐することで、安心感が増し、ここが「家」としての温もりを感じさせるのです。
周辺には、歴史と文化が息づいています。都営地下鉄浅草線 浅草橋駅から徒歩わずか3分、街の喧騒と静寂が巧みに調和し、古き良き日本の趣が残っています。歴史的な寺社や文化施設に囲まれ、散歩すること自体がアートのような体験となることでしょう。地域の風景は、まるで印象派の絵画のように美しく、訪れるたびに新しい発見があります。
プラウドフラット東日本橋 903での暮らしは、あなたに映画のワンシーンのような瞬間を提供します。朝の光が差し込み、新たな一日を祝福するように目覚め、夕暮れ時には美しいオレンジ色の空が心に染み渡ります。周囲の音楽が、生活のリズムとなり、家で過ごす時間がまるで特別なイベントのような幸福感に包まれるのです。
この物件があなたの心に響き、暮らしの舞台を提供するその瞬間が楽しみでなりません。プラウドフラット東日本橋 903での生活は、毎日が新たな冒険となり、あなたの人生をより豊かに彩ることでしょう。
まず、903号室の扉を開けると、優雅な香りが漂ってきます。それは、あなたの新しい生活の幕開けを告げる香料のよう。5帖…プラウドフラット東日本橋 903は、まるで舞台の中心に立つ主演のように存在感を放つ物件です。この特別な住まいは、東京都中央区東日本橋に佇む、南と西に開かれた明るく温かな空間を展開しています。心が躍るような場所、ここでの生活は日々のストーリーを紡ぐ情緒豊かな舞台となることでしょう。
まず、903号室の扉を開けると、優雅な香りが漂ってきます。それは、あなたの新しい生活の幕開けを告げる香料のよう。5帖の洋室と4帖の洋室は、まるで穏やかな海の波が寄せるように、心をほんのりと癒やしてくれます。LDK10.6帖の広がりは、友人を招いて笑顔があふれる食事会や、一日を振り返りながらの落ち着きのあるひとときにぴったりです。どの部屋にも優しい陽射しが注ぎ、あなたを温かく受け入れてくれるのです。
調理の場となるK2.6帖では、食材が踊るように切られ、香ばしい香りが鼻をくすぐります。新鮮な野菜や肉が鍋の中でくつくつと音を立て、あなたの五感を刺激し、心も身体も満たしてくれることでしょう。この空間が、あなたのクリエイティビティを刺激し、天才シェフのような気持ちにさせてくれます。
また、プラウドフラット東日本橋 903には、生活の利便性を追求した設備が整っています。オートロックや宅配ボックスは、まるであなたの生活を守る強固な盾のよう。エレベーターや駐車場は、日常のちょっとした移動をスムーズにし、まるで心地良い風に乗るような感覚を与えてくれます。管理人が常駐することで、安心感が増し、ここが「家」としての温もりを感じさせるのです。
周辺には、歴史と文化が息づいています。都営地下鉄浅草線 浅草橋駅から徒歩わずか3分、街の喧騒と静寂が巧みに調和し、古き良き日本の趣が残っています。歴史的な寺社や文化施設に囲まれ、散歩すること自体がアートのような体験となることでしょう。地域の風景は、まるで印象派の絵画のように美しく、訪れるたびに新しい発見があります。
プラウドフラット東日本橋 903での暮らしは、あなたに映画のワンシーンのような瞬間を提供します。朝の光が差し込み、新たな一日を祝福するように目覚め、夕暮れ時には美しいオレンジ色の空が心に染み渡ります。周囲の音楽が、生活のリズムとなり、家で過ごす時間がまるで特別なイベントのような幸福感に包まれるのです。
この物件があなたの心に響き、暮らしの舞台を提供するその瞬間が楽しみでなりません。プラウドフラット東日本橋 903での生活は、毎日が新たな冒険となり、あなたの人生をより豊かに彩ることでしょう。
バイブルスコア
バイブルスコア: 22.1
平均的なスコアです。
※バイブルスコア詳細はこちら
バイブルスコアとは独自のAI機械学習技術を利用した物件評価システムで、物件のおすすめ度を示します。最高得点は100点で、スコアが高いほど、よりおすすめの物件と評価されています。
写真
契約条件
| 賃料 | 予想金額:233,000〜253,000円程度 | 管理費 | 予想金額:13,000〜17,000円程度 |
| 礼金 | 非公開(アーカイブ) | 敷金 | 非公開(アーカイブ) |
| フリーレント | なし | 平米数 | 50.85㎡ |
| 間取り | 2LDK | 大型収納 | |
| 契約期間 |
| 方角 | 南 / 西 |
| 更新料 | 契約形態 | 普通賃貸借契約 | |
| 取引態様 | 媒介 | 内見状況 | 入居中 |
| 入居時期 | 入居中 | SOHO・事務所 | |
| ペット | ペット可 | 間取り内訳 | 洋:5 洋:4 LD:10.6 K:2.6 |
| キャンペーン情報・備考 | 本情報は賃料改定交渉の資料作成、収益物件の利回り試算、周辺エリアや最寄り駅の坪単価分析、次回募集開始時期の予測などにご活用いただけます。 | ||
※「どの不動産に頼めばいいのか分からない」「信頼できる営業マンの話を聞きたい」「一番親切な会社と契約したい」とお悩みの方におすすめなのが「高級賃貸バイブル」です。
高級賃貸バイブルは業界10年以上の熟練スタッフ群がお客様ファーストで対応します。
下記ボタンから、まずは無料でご相談下さい。
※内覧をご希望の際には、どうぞ物件のエントランス前にてお待ち合わせくださいませ。ご内覧後は、同じ場所でお別れとさせていただきます。お客様のご都合に合わせたスムーズなご案内を心がけておりますので、ご質問等がございましたら何なりとお申し付けください。 物件概要
| 物件名 |
| 築年月 |
|
|---|---|---|---|
| 所在地 | |||
| 交通 | |||
| 総戸数 |
| 総階数 |
|
| 構造 |
| ||
地図
物件までの道のりは、「拡大地図を表示」をクリックしてナビ機能をご利用ください。
部屋設備

















建物設備

TVモニターホン

エレベーター

オートロック

宅配ボックス

敷地内ゴミ置場

管理人

駐車場平置き

駐輪場
プラウドフラット東日本橋の現在募集中のお部屋
- No rooms found for this property.

















