
| 賃料 | 192,000 円 | 管理費 | 12,000円 |
| 礼金/敷金 | 1 ヶ月 / 1 ヶ月 | 平米数 | 58.15㎡ |
| 仲介手数料(毎月15名様限定) | 0.78ヶ月(サンキュー価格) | キャッシュバック(毎月15名様限定) | 0円 |
| 初期費用概算 | 891,236 円 | みなし賃料(月額) | 218,567 円 |
※上記みなし賃料(月額)は仲介手数料割引・無料&キャッシュバックを加味した高級賃貸バイブル限定の金額です。一般的なみなし賃料とは異なります。
【建物ページ】ルーウェ東大泉の詳細・最新空室はこちら▶▶
選ばれる理由
仲介手数料無料・キャンペーン情報(毎月15名様限定)
〇仲介手数料割引キャンペーン
ルーウェ東大泉 601の口コミ・レビュー
この物件は、58.15㎡の洗練された専有面積を持ち、LDK14.6帖と広…ルーウェ東大泉 601は、まるで時間を遡る旅に誘う贅沢な空間です。東京の喧騒から少し離れた練馬区東大泉に位置し、南東向きの窓から差し込む柔らかな光が、あなたの毎日を優雅に彩ってくれます。まるで自然のアートのように、日々の暮らしの中で四季の変化を肌で感じることができるこの住まいは、あなたにとって特別な場所となることでしょう。
この物件は、58.15㎡の洗練された専有面積を持ち、LDK14.6帖と広々とした空間が一体感を生み出すハーモニーを奏でます。ここでは、友人や家族と共に心温まる食卓を囲むことができ、その瞬間がまるで映画のワンシーンのように心に残ることでしょう。さらに、洋室6帖と洋室4.8帖は、それぞれの個性を引き立たせるスペースで、あなたのライフスタイルに応じた使い方が広がります。まるで衣装を選ぶかのように、ひとつとして同じではない豊かな生活がここには待っています。
ルーウェ東大泉 601は、ただの住居ではなく、あなたの人生を豊かにする舞台です。エレガントなオートロックシステムに守られた玄関を開けると、まるで美術館のような空間が広がり、心を躍らせます。TVモニターホン越しに、ここで迎え入れる人々との出会いは、まるで新たな物語の始まりのよう。カスタマイズされた快適な居住空間を作り上げるための、バイク置場や宅配ボックス、駐輪場の存在も、生活の利便性を一層高めてくれます。
また、ルーウェ東大泉 601のある街には、歴史や文化が息づいています。周辺には、静かな公園や趣のある街並みが広がり、散策するたびに香り立つ緑や、耳を澄ませば聞こえてくる小鳥のさえずりが、心を穏やかにしてくれます。たまには近くのカフェで、手作りのスイーツを味わいながら、優雅なひとときを過ごすのも、最高の贅沢です。
ルーウェ東大泉 601での生活は、ただの住まいを超え、心の豊かさを育む舞台装置となります。毎朝の太陽の光に包まれながら目覚め、愛する人と共に笑い合い、趣味に没頭する日々。あなたの新しい人生の物語が、ルーウェ東大泉 601にて紡がれていくことを心より願っています。
バイブルスコア
バイブルスコア: 56.2
条件のいい物件です、引っ越しが2か月以内の場合は仮申し込みを検討すべき物件です。
※バイブルスコア詳細はこちら
バイブルスコアとは独自のAI機械学習技術を利用した物件評価システムで、物件のおすすめ度を示します。最高得点は100点で、スコアが高いほど、よりおすすめの物件と評価されています。
写真
契約条件
| 賃料 | 192000 円 | 管理費 | 12000円 |
| 礼金 | 1ヶ月 | 敷金 | 1ヶ月 |
| フリーレント | なし | 平米数 | 58.15㎡ |
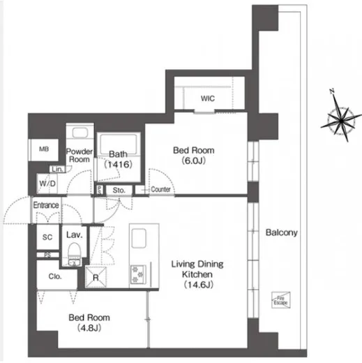
| 間取り | 2LDK+WIC | 大型収納 | WIC |
| 契約期間 | 2年 | 方角 | 南東 |
| 更新料 | 1ヶ月 | 契約形態 | 普通賃貸借契約 |
| 取引態様 | 媒介 | 内見状況 | 相談 |
| 入居時期 | 相談 | SOHO・事務所 | 不可 |
| ペット | 不可 | 間取り内訳 | LDK14.6帖 洋室6帖 洋室4.8帖 |
| キャンペーン情報・備考 | |||
※「どの不動産に頼めばいいのか分からない」「信頼できる営業マンの話を聞きたい」「一番親切な会社と契約したい」とお悩みの方におすすめなのが「高級賃貸バイブル」です。
高級賃貸バイブルは業界10年以上の熟練スタッフ群がお客様ファーストで対応します。
下記ボタンから、まずは無料でご相談下さい。
※内覧をご希望の際には、どうぞ物件のエントランス前にてお待ち合わせくださいませ。ご内覧後は、同じ場所でお別れとさせていただきます。お客様のご都合に合わせたスムーズなご案内を心がけておりますので、ご質問等がございましたら何なりとお申し付けください。 物件概要
| 物件名 |
| 築年月 |
|
|---|---|---|---|
| 所在地 |
| ||
| 交通 |
| ||
| 総戸数 |
| 総階数 |
|
| 構造 |
| ||
地図
物件までの道のりは、「拡大地図を表示」をクリックしてナビ機能をご利用ください。
部屋設備











建物設備

TVモニターホン

エレベーター

オートロック

バイク置場

宅配ボックス

敷地内ゴミ置場

駐車場機械式

駐輪場
初期費用の比較(毎月15名様限定の特別価格です。)
※家賃は日割りの為、月末から入居したと仮定して見積もりしています。
※保証会社は複数用意があり、一番安価な保証会社で見積もっています。
| 項目 | 高級賃貸バイブル | 一般的な不動産会社 |
|---|---|---|
| 敷金 | 192,000円 | 192,000円 |
| 保証金 | 0円 | 0円 |
| 礼金 | 192,000円 | 192,000円 |
| 家賃 | 192,000円 | 192,000円 |
| 管理費 | 12,000円 | 12,000円 |
| 鍵交換費用 | 16,500円 | 16,500円 |
| 火災保険 | 20,000円 | 20,000円 |
| 保証会社 | 102,000円 | 102,000円 |
| フリーレント控除 | 0円 | 0円 |
| 仲介手数料 | 164,736円 | 211,200円 |
| キャッシュバック | 0円 | — |
| 合計 | 891,236円 | 937,700円 |
※現在全物件を 鍵交換費用16500円・火災保険20000円・保証会社保証率50%の一律で見積もっています。さらに詳細な金額はお問い合わせ下さい。
※フリーレントキャンペーン対象物件の場合、上記金額より翌月家賃がマイナスになります。保険加入有り金額指定なしの場合保険料は0円となっています。
ルーウェ東大泉の現在募集中のお部屋
- ルーウェ東大泉 608 - 間取り: 2LDK - 賃料: 21.2万円
- ルーウェ東大泉 512 - 間取り: 2LDK - 賃料: 20万円
- ルーウェ東大泉 502 - 間取り: 2LDK+SIC - 賃料: 18.2万円
- ルーウェ東大泉 308 - 間取り: 2LDK+WIC - 賃料: 18.6万円
- ルーウェ東大泉 209 - 間取り: 2LDK+WIC - 賃料: 18.1万円
- ルーウェ東大泉 601 - 間取り: 2LDK+WIC - 賃料: 19.2万円
- ルーウェ東大泉 405 - 間取り: 2LDK+WIC - 賃料: 18.8万円
- ルーウェ東大泉 404 - 間取り: 2LDK+WIC - 賃料: 18.8万円
- ルーウェ東大泉 501 - 間取り: 2LDK+SIC - 賃料: 18.6万円
- ルーウェ東大泉 320 - 間取り: 2LDK - 賃料: 19.6万円
- ルーウェ東大泉 319 - 間取り: 2LDK - 賃料: 19.6万円
- ルーウェ東大泉 215 - 間取り: 2LDK+WIC - 賃料: 18.1万円
- ルーウェ東大泉 415 - 間取り: 2LDK - 賃料: 19.8万円
- ルーウェ東大泉 413 - 間取り: 2LDK - 賃料: 19.8万円
- ルーウェ東大泉 412 - 間取り: 2LDK - 賃料: 19.8万円
- ルーウェ東大泉 411 - 間取り: 2LDK+WIC - 賃料: 18.8万円
- ルーウェ東大泉 112 - 間取り: 2LDK - 賃料: 18.6万円
- ルーウェ東大泉 111 - 間取り: 2LDK - 賃料: 18.6万円
- ルーウェ東大泉 217 - 間取り: 2LDK - 賃料: 19.1万円
- ルーウェ東大泉 216 - 間取り: 2LDK - 賃料: 19.1万円
- ルーウェ東大泉 207 - 間取り: 2LDK+WIC - 賃料: 17万円
- ルーウェ東大泉 514 - 間取り: 1LDK+WIC - 賃料: 17.6万円
- ルーウェ東大泉 303 - 間取り: 2LDK+SIC - 賃料: 17.2万円
- ルーウェ東大泉 301 - 間取り: 2LDK+SIC - 賃料: 17.2万円
- ルーウェ東大泉 305 - 間取り: 2LDK+SIC - 賃料: 17.8万円
- ルーウェ東大泉 304 - 間取り: 2LDK+SIC - 賃料: 17.8万円












